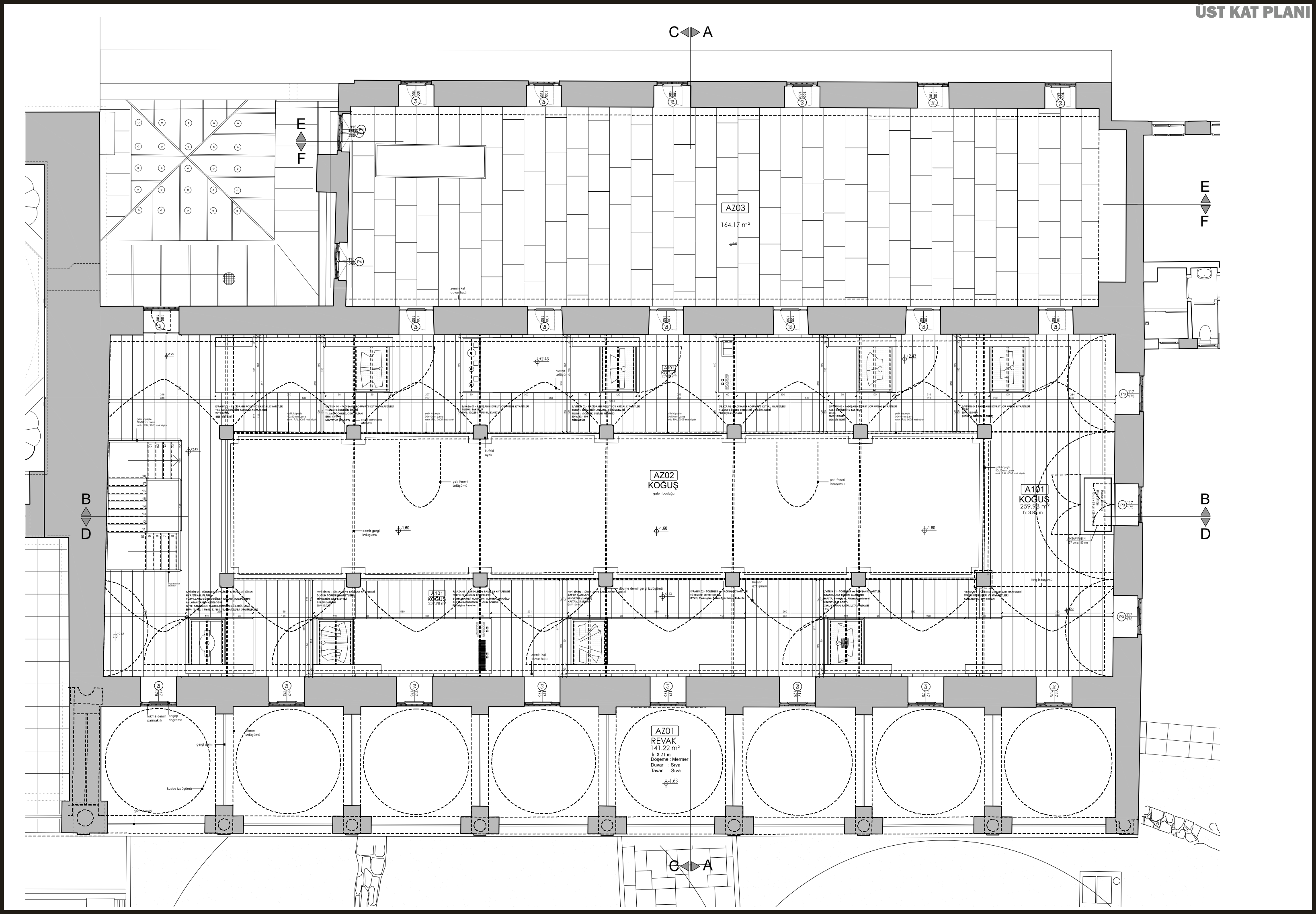
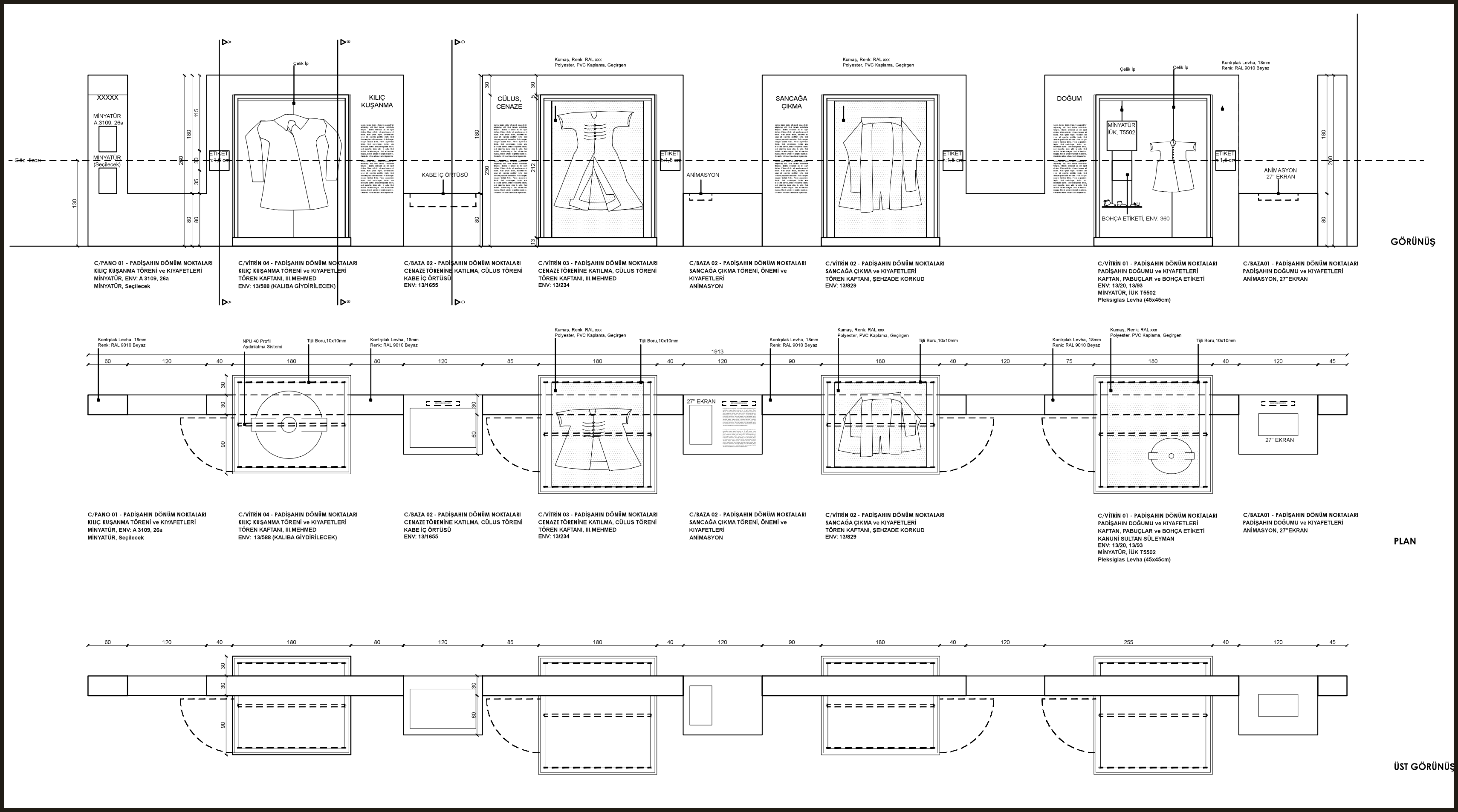
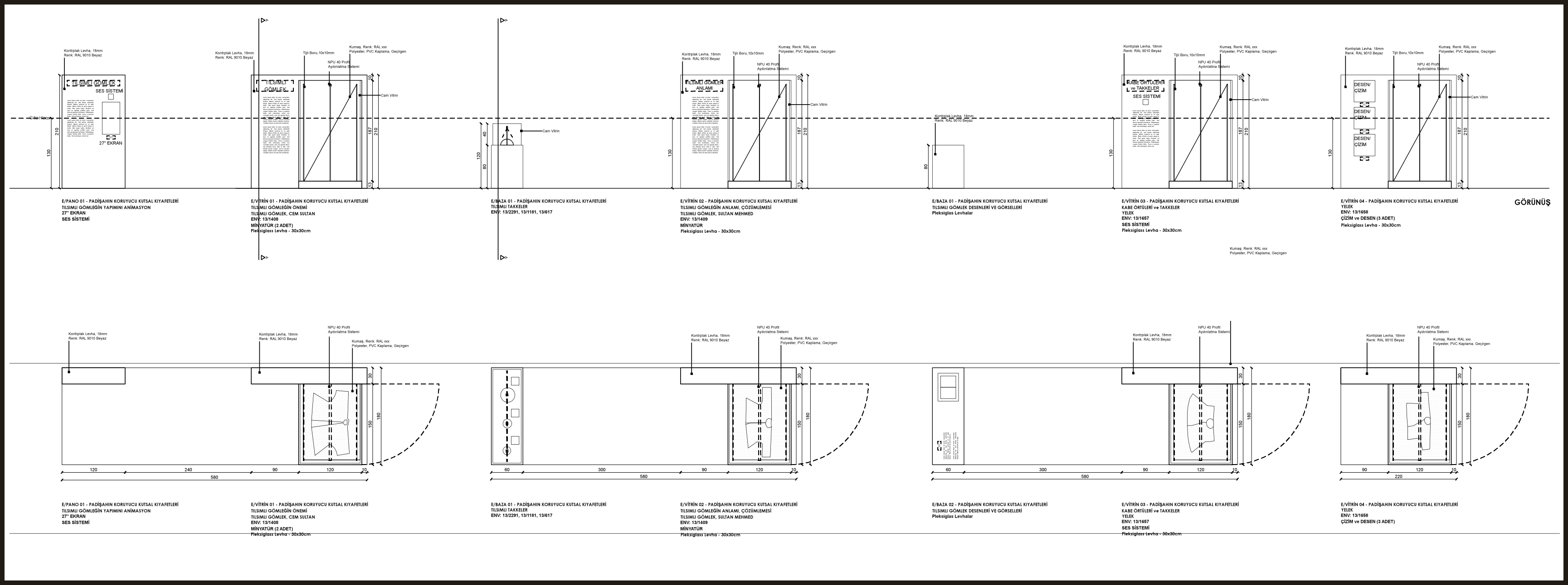
TOPKAPI SARAYI MÜZESİ, Konsept Tasarım, Uygulama Projesi, 2017, İstanbul
SEDDÜLBAHİR KALESİ SERGİLEME PROJESİ, Yeniden İşlevlendirme ve Sergileme Projesi, 2016, Çanakkale
SEKA BİLİM MÜZESİ DİNOZOR SERGİSİ, Konsept Tasarım ve Sergi Düzenlemesi, 2015, Kocaeli
TOPKAPI SARAYI MÜZESİ, Konsept Tasarım, Uygulama Projesi, 2017, İstanbul
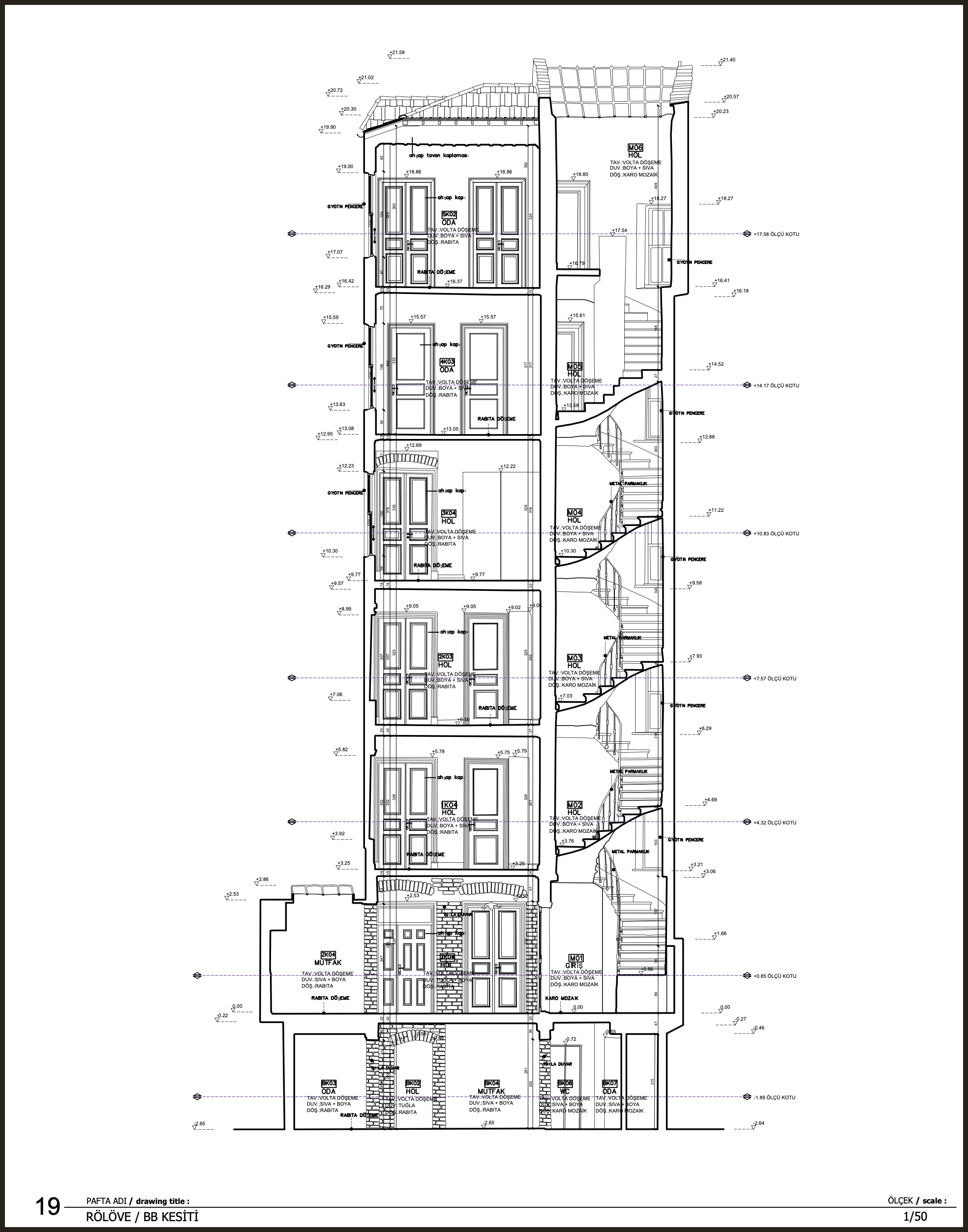
SÜLEYMANİYE EVİ, Rölöve, Restorasyon, Restitüsyon Projesi, 2009, İstanbul
SEKA PARK KENT SERGİLERİ, Konsept Tasarım ve Sergileme, 2015, Kocaeli
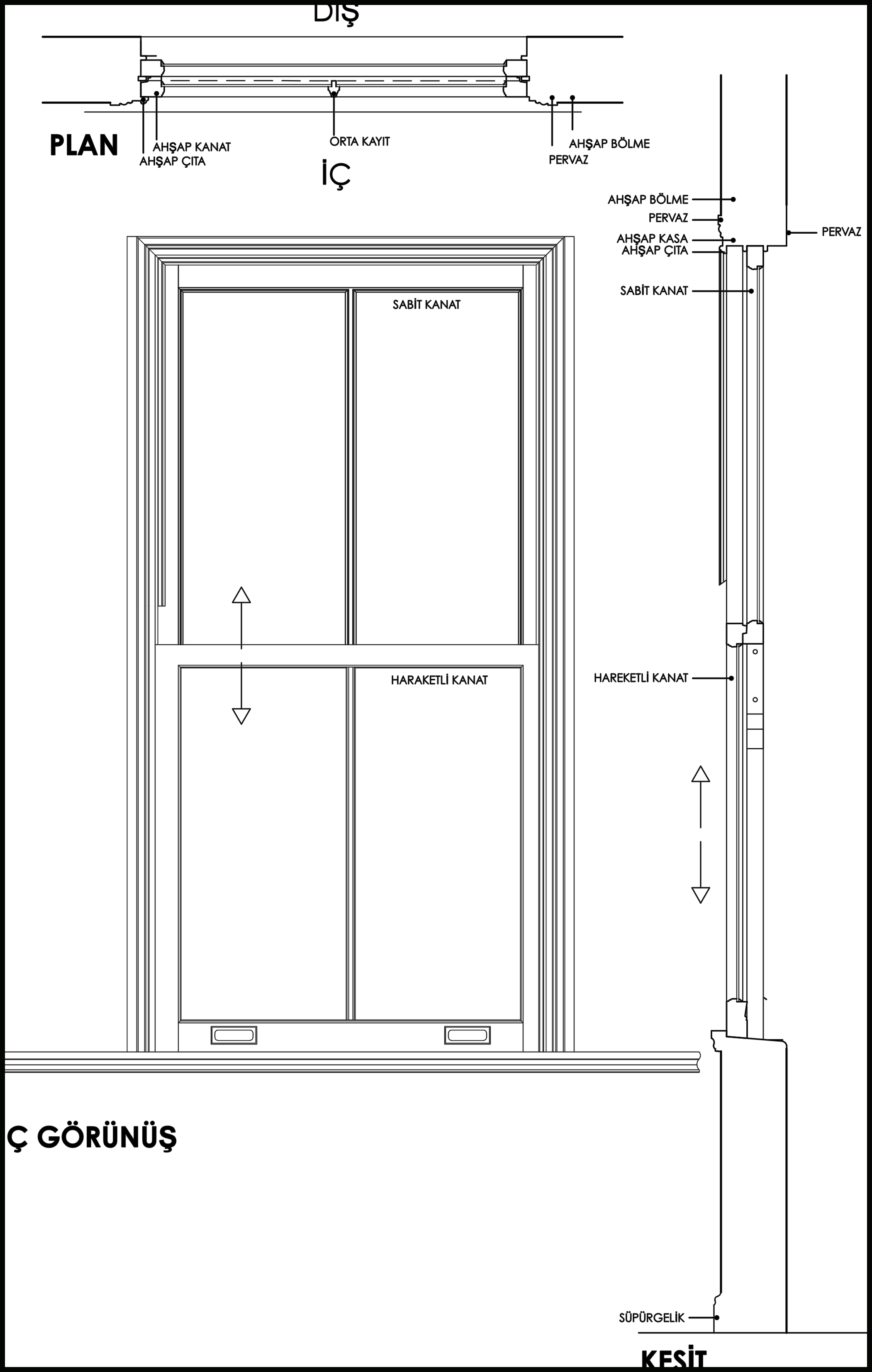
SÜLEYMANİYE EVİ, Rölöve, Restorasyon, Restitüsyon Projesi, 2009, İstanbul
SONSUZLUK PARKI, Konsept Tasarım, 2020, İzmir


SEDDÜLBAHİR KALESİ SERGİLEME PROJESİ, Yeniden İşlevlendirme ve Sergileme Projesi, 2016, Çanakkale
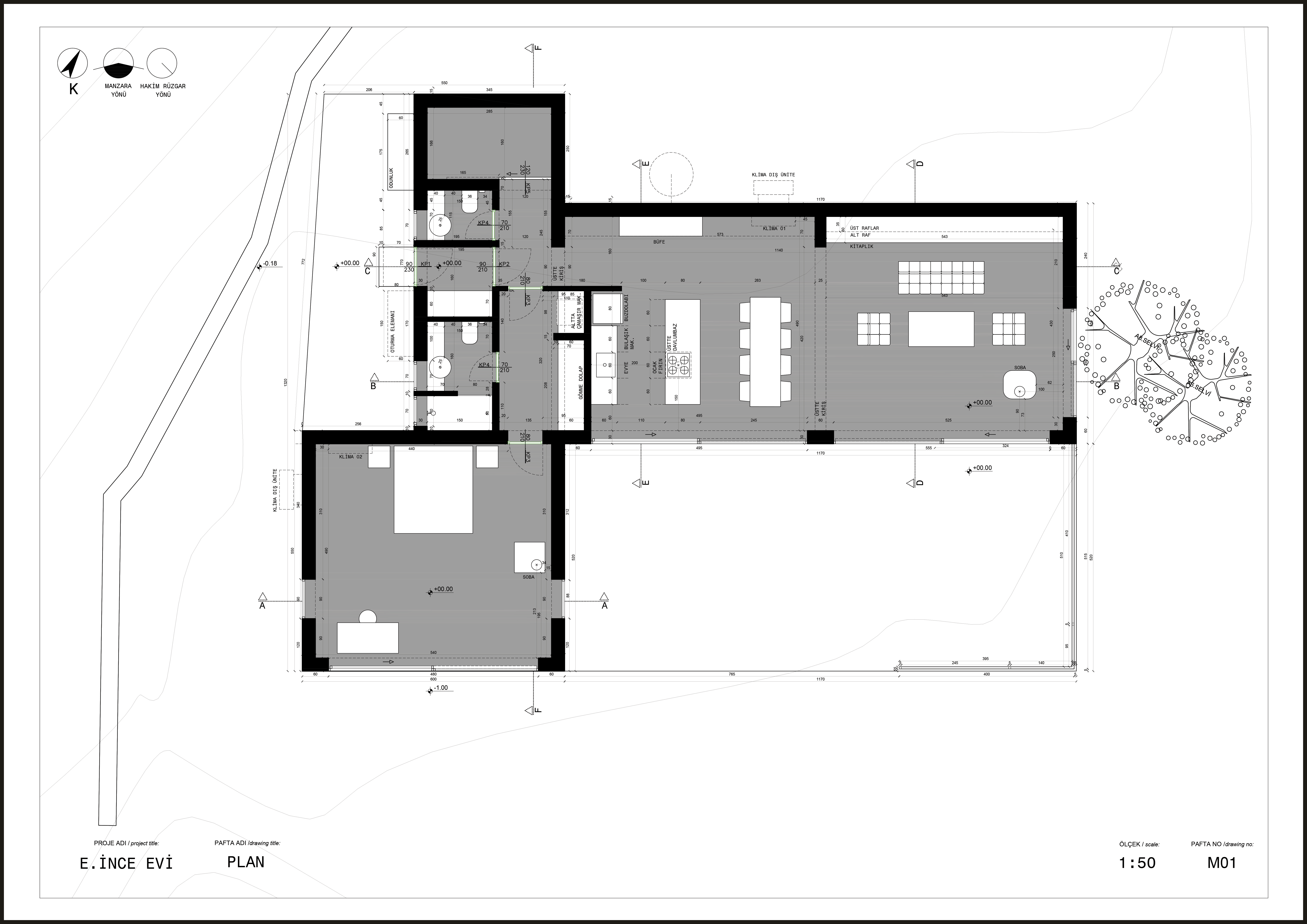
İNCE EVİ, Konsept Tasarımı, Uygulama Projesi, 2021, Yalova
SEKA KAĞIT MÜZESİ, Konsept Tasarım, Avan ve Uygulama Projeleri, 2015, Kocaeli
SEKA KAĞIT MÜZESİ, Konsept Tasarım, Avan ve Uygulama Projeleri, 2015, Kocaeli
İNCE EVİ, Konsept Tasarımı, Uygulama Projesi, 2021, Yalova
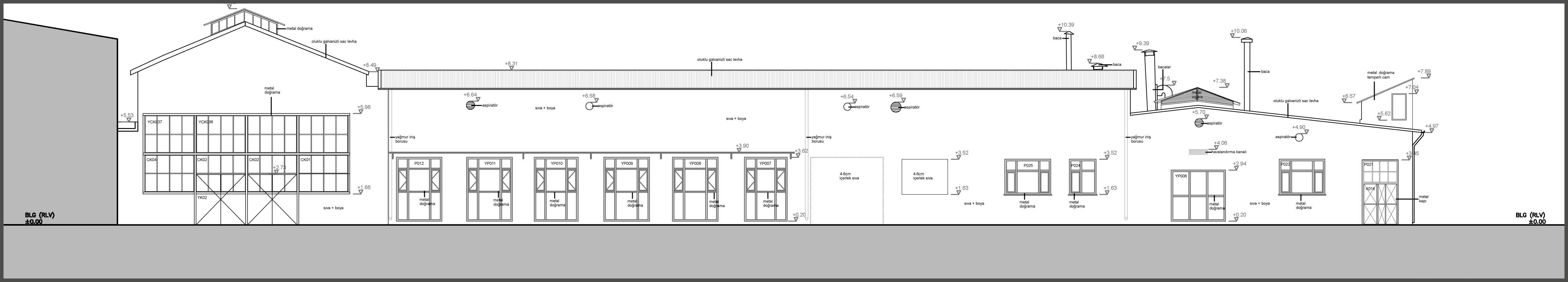
BEŞİKTAŞ METRO ŞAFTI ARKEOLOJİK KALINTI ANALİTİK RÖLÖVESİ, Analitik Rölöve, 2016, İstanbul
BOZKIR PAZAR YERİ, Konsept Tasarım, 2014, Konya
SEDDÜLBAHİR KALESİ SERGİLEME PROJESİ, Yeniden İşlevlendirme ve Sergileme Projesi, 2016, Çanakkale
İNCE EVİ, Konsept Tasarımı, Uygulama Projesi, 2021, Yalova
MOR ÇATI STÜDYO, Konsept Tasarım ve Avan Proje, 2015, İstanbul
MODA AHŞAP KONAK, Rölöve, Restorasyon, Restitüsyon Projesi, 2009, İstanbul
İZMİR TASARIM REHBERİ, Kıyı Projesi Tasarım Rehberi, 2012, İzmir
HALASKARGAZİ KUYU, Rölöve, Restitüsyon ve Restorasyon Projesi, 2015, İstanbul
İZMİR TASARIM REHBERİ, Kıyı Projesi Tasarım Rehberi, 2012, İzmir
TEPEKENT KENTSEL TASARIM Kentsel, Tasarım ve Avan Proje, 2014, Konya
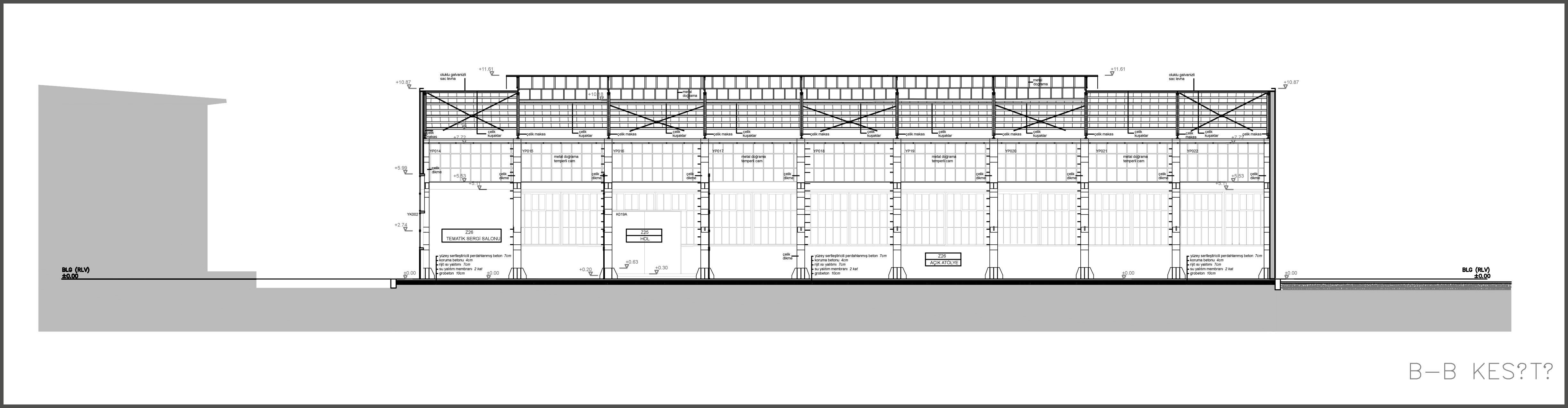
SÜLEYMANİYE KÜLLİYESİ ŞİFAHANE RESTORASYONU, Şantiye Yönetimi ve Revize Projeler, 2016, İstanbul
TEPEKENT KENTSEL TASARIM Kentsel, Tasarım ve Avan Proje, 2014, Konya
SİLLE KENT MÜZESİ, Konsept Tasarım, 2014, Konya
TOPKAPI SARAYI MUTFAKLARI, Konsept Tasarım, Restorasyon, 2012, İstanbul
AFYON MÜZESİ, İç Mekan ve Sergi Düzenleme Projesi, 2012, Afyon
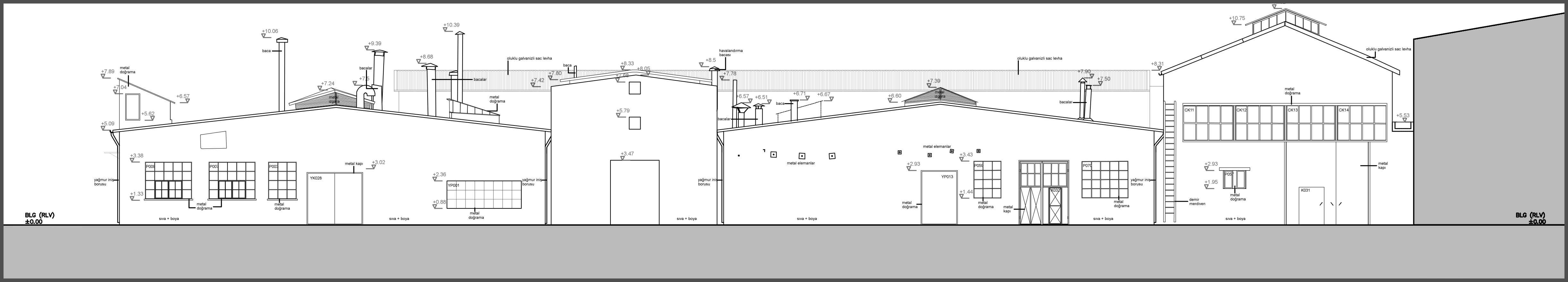
ZEYTİN MÜZESİ, Konsept Tasarım, Uygulama Projesi, 2017, Hatay
KABATAŞ ŞAFT KAZISI ANALİTİK RÖLÖVESİ, Analitik Rölöve, 2016, İstanbul
İZMİR TASARIM REHBERİ, Kıyı Projesi Tasarım Rehberi, 2012, İzmir
HALASKARGAZİ KUYU, Rölöve, Restitüsyon ve Restorasyon Projesi, 2015, İstanbul
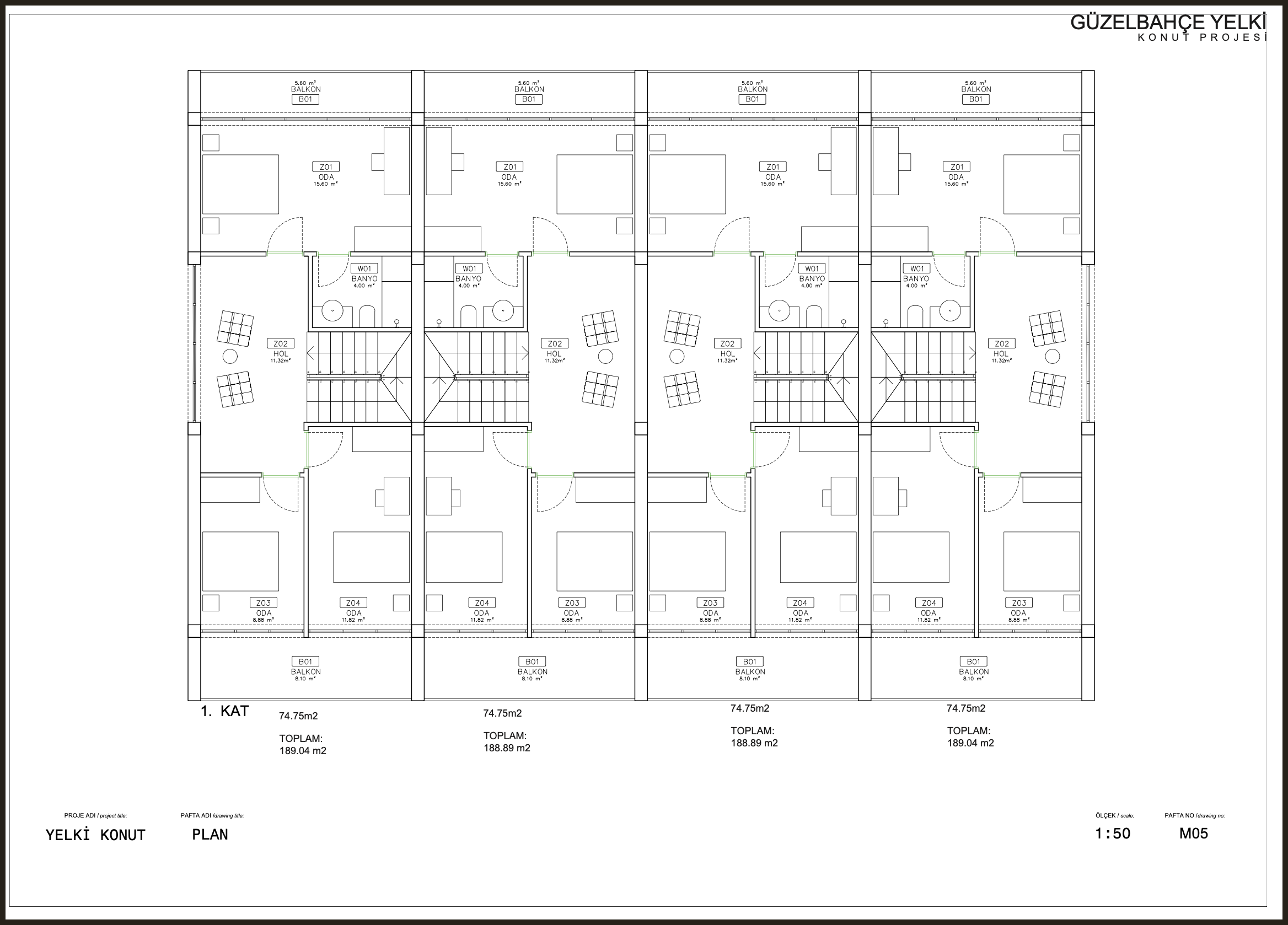
YELKİ KONUTLARI, Konsept Tasarım, Uygulama Projesi, 2021, İzmir
KABATAŞ ŞAFT KAZISI ANALİTİK RÖLÖVESİ, Analitik Rölöve, 2016, İstanbul
MİMAR SİNAN SERGİSİ TOPHANE-İ AMİRE, Konsept Tasarım, Avan ve Uygulama, 2015, İstanbul, Tophane-i Amire
BOZKIR PAZAR YERİ, Konsept Tasarım, 2014, Konya
YELKİ KONUTLARI, Konsept Tasarım, Uygulama Projesi, 2021, İzmir
TOPKAPI SARAYI MÜZESİ, Konsept Tasarım, Uygulama Projesi, 2017, İstanbul
ZEYTİN MÜZESİ, Konsept Tasarım, Uygulama Projesi, 2017, Hatay
AFYON MÜZESİ, İç Mekan ve Sergi Düzenleme Projesi, 2012, Afyon
MİMAR SİNAN SERGİSİ TOPHANE-İ AMİRE, Konsept Tasarım, Avan ve Uygulama, 2015, İstanbul, Tophane-i Amire
TOPKAPI SARAYI MUTFAKLARI, Konsept Tasarım, Restorasyon, 2012, İstanbul
YELKİ KONUTLARI, Konsept Tasarım, Uygulama Projesi, 2021, İzmir

TOPKAPI SARAYI MÜZESİ, Konsept Tasarım, Uygulama Projesi, 2017, İstanbul
AFYON MÜZESİ, İç Mekan ve Sergi Düzenleme Projesi, 2012, Afyon
TOPKAPI SARAYI MÜZESİ, Konsept Tasarım, Uygulama Projesi, 2017, İstanbul
MOR ÇATI STÜDYO, Konsept Tasarım ve Avan Proje, 2015, İstanbul
MİMAR SİNAN SERGİSİ TOPHANE-İ AMİRE, Konsept Tasarım, Avan ve Uygulama, 2015, İstanbul, Tophane-i Amire
GEZİCİ SERGİ, Konsept Tasarım, 2018, İstanbul
İZMİR TASARIM REHBERİ, Kıyı Projesi Tasarım Rehberi, 2012, İzmir
TOPKAPI SARAYI MÜZESİ, Konsept Tasarım, Uygulama Projesi, 2017, İstanbul
YELKİ KONUTLARI, Konsept Tasarım, Uygulama Projesi, 2021, İzmir
SEKA BİLİM MÜZESİ DİNOZOR SERGİSİ, Konsept Tasarım ve Sergi Düzenlemesi, 2015, Kocaeli
TOPKAPI SARAYI MÜZESİ, Konsept Tasarım, Uygulama Projesi, 2017, İstanbul
SEDDÜLBAHİR KALESİ SERGİLEME PROJESİ, Yeniden İşlevlendirme ve Sergileme Projesi, 2016, Çanakkale
SEKA PARK KENT SERGİLERİ, Konsept Tasarım ve Sergileme, 2015, Kocaeli
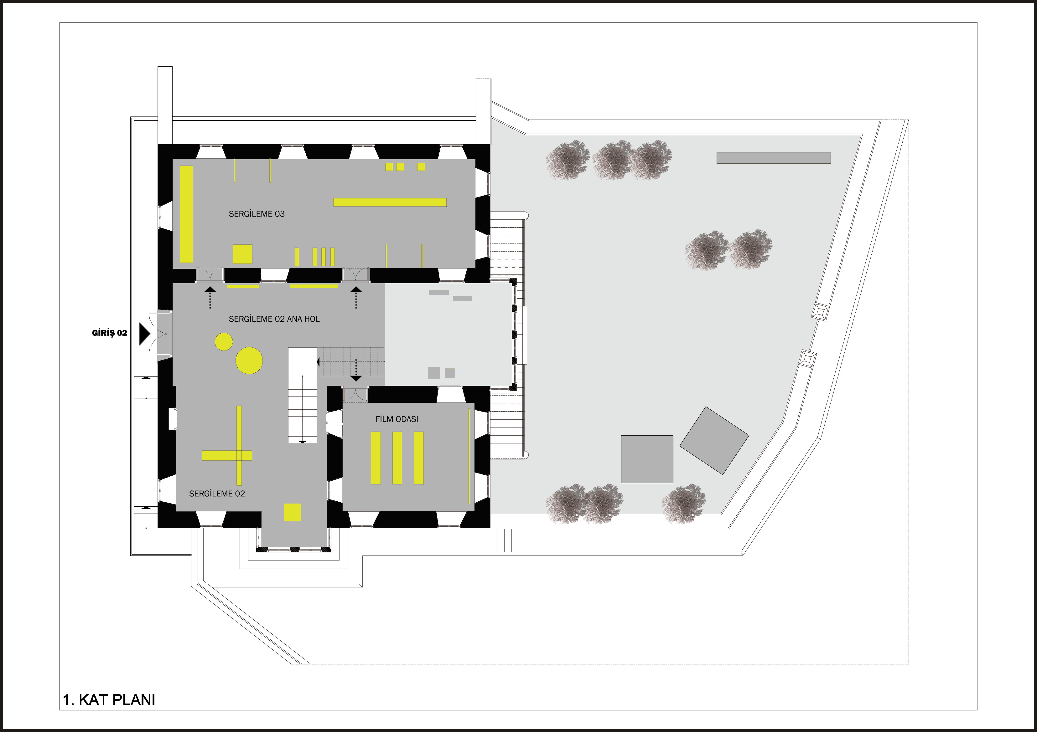
İZMİR SESLİ TARİH MÜZESİ, Konsept Tasarım, 2022, İzmir
İNCE EVİ, Konsept Tasarımı, Uygulama Projesi, 2021, Yalova
SÜLEYMANİYE EVİ, Rölöve, Restorasyon, Restitüsyon Projesi, 2009, İstanbul
SEKA PARK SOKAK SERGİSİ, Konsept Tasarım ve Sergileme, 2015, Kocaeli
AFYON MÜZESİ, İç Mekan ve Sergi Düzenleme Projesi, 2012, Afyon
SEDDÜLBAHİR KALESİ SERGİLEME PROJESİ, Yeniden İşlevlendirme ve Sergileme Projesi, 2016, Çanakkale
İNCE EVİ, Konsept Tasarımı, Uygulama Projesi, 2021, Yalova
SEDDÜLBAHİR KALESİ SERGİLEME PROJESİ, Yeniden İşlevlendirme ve Sergileme Projesi, 2016, Çanakkale
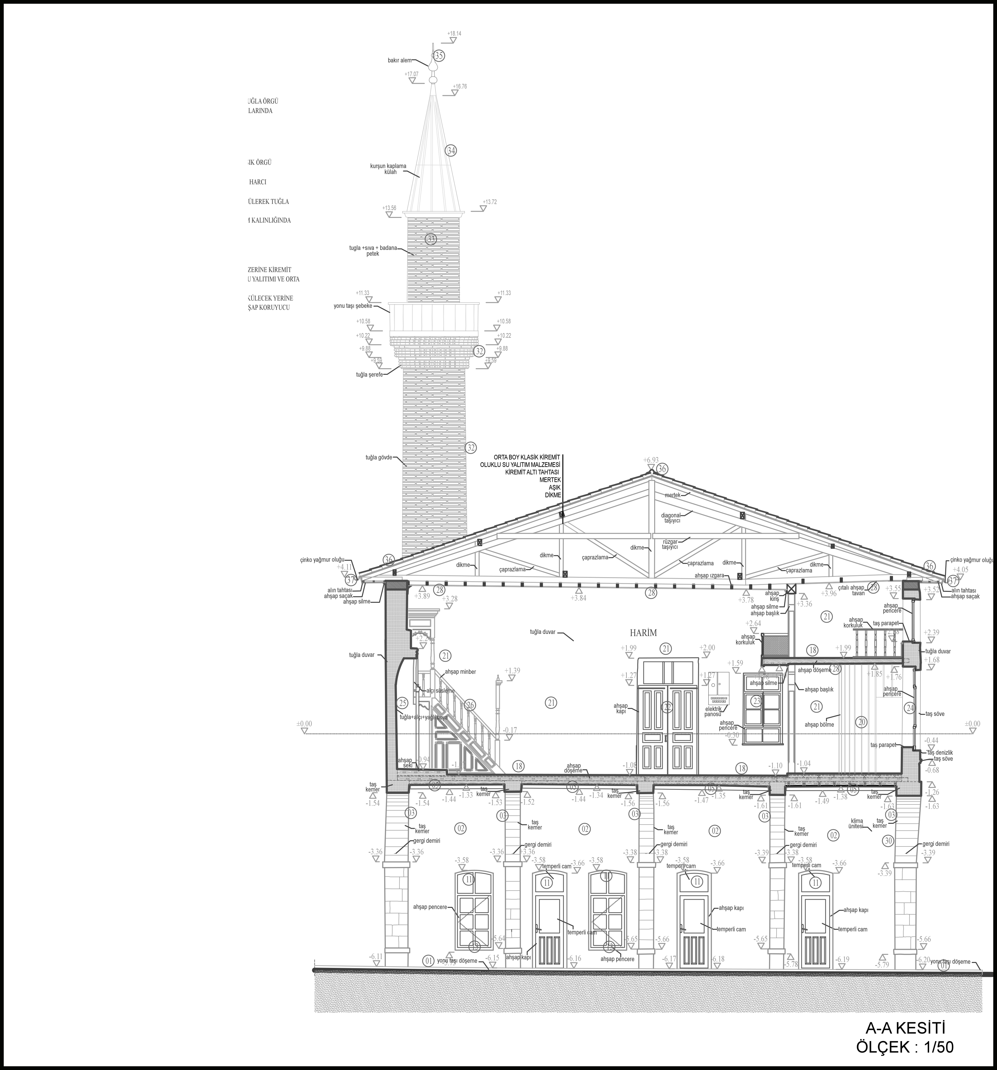
BURHANİYE CAMİİ, Şantiye Yönetimi ve Revize Projeler, 2009, İstanbul
TOPKAPI SARAYI MÜZESİ, Konsept Tasarım, Uygulama Projesi, 2017, İstanbul
MOR ÇATI STÜDYO, Konsept Tasarım ve Avan Proje, 2015, İstanbul
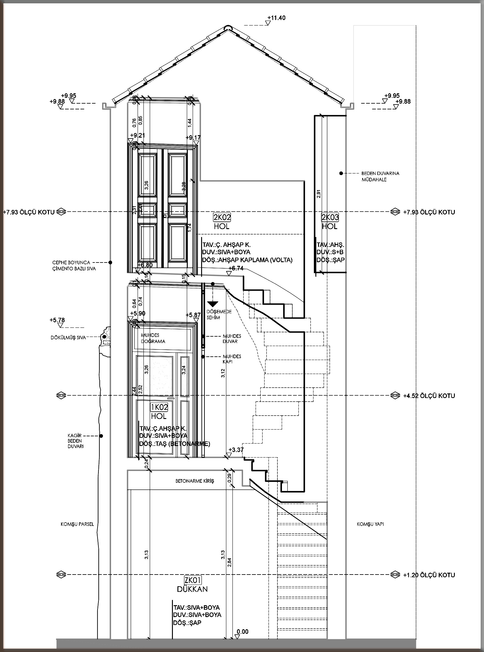
ASMALIMESCİT, Rölöve, Restitüsyon, Restorasyon, 2022, İstanbul
MERSİN, Kentsel Tasarım, 2019, Mersin
BURHANİYE CAMİİ, Şantiye Yönetimi ve Revize Projeler, 2009, İstanbul
MİMAR SİNAN SERGİSİ TOPHANE-İ AMİRE, Konsept Tasarım, Avan ve Uygulama, 2015, İstanbul, Tophane-i Amire
DİALOG İFADE ANLATIM OKULU, Konsept Tasarım ve Uygulama Projesi, 2015-2016, İstanbul
BURHANİYE CAMİİ, Şantiye Yönetimi ve Revize Projeler, 2009, İstanbul
SONSUZLUK PARKI, Konsept Tasarım, 2020, İzmir
SÜLEYMANİYE EVİ, Rölöve, Restorasyon, Restitüsyon Projesi, 2009, İstanbul
İNCE EVİ, Konsept Tasarımı, Uygulama Projesi, 2021, Yalova
BURHANİYE CAMİİ, Şantiye Yönetimi ve Revize Projeler, 2009, İstanbul
İNCE EVİ, Konsept Tasarımı, Uygulama Projesi, 2021, Yalova
SEKA KAĞIT MÜZESİ, Konsept Tasarım, Avan ve Uygulama Projeleri, 2015, Kocaeli
AFYON MÜZESİ, İç Mekan ve Sergi Düzenleme Projesi, 2012, Afyon
BURHANİYE CAMİİ, Şantiye Yönetimi ve Revize Projeler, 2009, İstanbul
NETAME, Kitap, 2007
TOPKAPI SARAYI MUTFAKLARI, Konsept Tasarım, Restorasyon, 2012, İstanbul

BURHANİYE CAMİİ, Şantiye Yönetimi ve Revize Projeler, 2009, İstanbul
SEKA PARK KENT SERGİLERİ, Konsept Tasarım ve Sergileme, 2015, Kocaeli
ETİBANK, Konsept Tasarım, 2017, Ankara
SEKA KAĞIT MÜZESİ, Konsept Tasarım, Avan ve Uygulama Projeleri, 2015, Kocaeli
TOPKAPI SARAYI MUTFAKLARI, Konsept Tasarım, Restorasyon, 2012, İstanbul
SONSUZLUK PARKI, Konsept Tasarım, 2020, İzmir
MOR ÇATI STÜDYO, Konsept Tasarım ve Avan Proje, 2015, İstanbul
MODA AHŞAP KONAK, Rölöve, Restorasyon, Restitüsyon Projesi, 2009, İstanbul
ETİBANK, Konsept Tasarım, 2017, Ankara
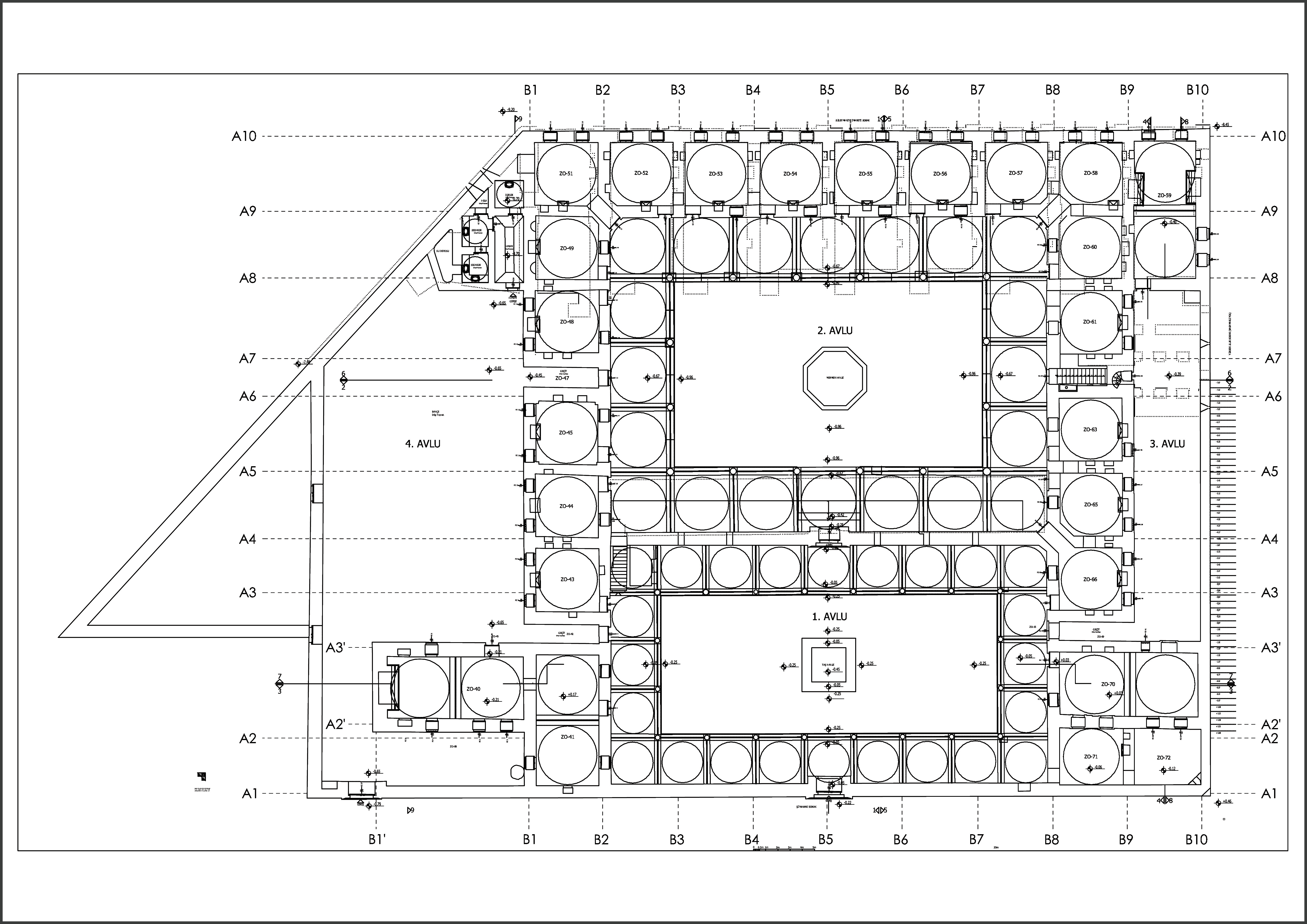
YENİKAPI ARKEOLOJİK BULUNTU ANALİTİK RÖLÖVESİ, Analitik Rölöve, 2014, İstanbul
MODA AHŞAP KONAK, Rölöve, Restorasyon, Restitüsyon Projesi, 2009, İstanbul
SÜLEYMANİYE KÜLLİYESİ ŞİFAHANE RESTORASYONU, Şantiye Yönetimi ve Revize Projeler, 2016, İstanbul
MODA AHŞAP KONAK, Rölöve, Restorasyon, Restitüsyon Projesi, 2009, İstanbul
MOR ÇATI STÜDYO, Konsept Tasarım ve Avan Proje, 2015, İstanbul
ETİBANK, Konsept Tasarım, 2017, Ankara
SÜLEYMANİYE KÜLLİYESİ ŞİFAHANE RESTORASYONU, Şantiye Yönetimi ve Revize Projeler, 2016, İstanbul
SEKA KAĞIT MÜZESİ, Konsept Tasarım, Avan ve Uygulama Projeleri, 2015, Kocaeli
SÜLEYMANİYE KÜLLİYESİ ŞİFAHANE RESTORASYONU, Şantiye Yönetimi ve Revize Projeler, 2016, İstanbul
KABATAŞ ŞAFT KAZISI ANALİTİK RÖLÖVESİ, Analitik Rölöve, 2016, İstanbul
SÜLEYMANİYE KÜLLİYESİ ŞİFAHANE RESTORASYONU, Şantiye Yönetimi ve Revize Projeler, 2016, İstanbul
KABATAŞ ŞAFT KAZISI ANALİTİK RÖLÖVESİ, Analitik Rölöve, 2016, İstanbul
BEŞİKTAŞ METRO ŞAFTI ARKEOLOJİK KALINTI ANALİTİK RÖLÖVESİ, Analitik Rölöve, 2016, İstanbul
ZEYTİN MÜZESİ, Konsept Tasarım, Uygulama Projesi, 2017, Hatay
BOZKIR PAZAR YERİ, Konsept Tasarım, 2014, Konya
KABATAŞ ŞAFT KAZISI ANALİTİK RÖLÖVESİ, Analitik Rölöve, 2016, İstanbul
MOR ÇATI STÜDYO, Konsept Tasarım ve Avan Proje, 2015, İstanbul
YELKİ KONUTLARI, Konsept Tasarım, Uygulama Projesi, 2021, İzmir
TOPKAPI SARAYI MÜZESİ, Konsept Tasarım, Uygulama Projesi, 2017, İstanbul
HALASKARGAZİ KUYU, Rölöve, Restitüsyon ve Restorasyon Projesi, 2015, İstanbul
YELKİ KONUTLARI, Konsept Tasarım, Uygulama Projesi, 2021, İzmir
TEPEKENT KENTSEL TASARIM Kentsel, Tasarım ve Avan Proje, 2014, Konya
MİMAR SİNAN SERGİSİ TOPHANE-İ AMİRE, Konsept Tasarım, Avan ve Uygulama, 2015, İstanbul, Tophane-i Amire
MOR ÇATI STÜDYO, Konsept Tasarım ve Avan Proje, 2015, İstanbul
TEPEKENT KENTSEL TASARIM Kentsel, Tasarım ve Avan Proje, 2014, Konya
DİALOG İFADE ANLATIM OKULU, Konsept Tasarım ve Uygulama Projesi, 2015-2016, İstanbul
TOPKAPI SARAYI MÜZESİ, Konsept Tasarım, Uygulama Projesi, 2017, İstanbul
MOR ÇATI STÜDYO, Konsept Tasarım ve Avan Proje, 2015, İstanbul
TOPKAPI SARAYI MÜZESİ, Konsept Tasarım, Uygulama Projesi, 2017, İstanbul
MİMAR SİNAN SERGİSİ TOPHANE-İ AMİRE, Konsept Tasarım, Avan ve Uygulama, 2015, İstanbul, Tophane-i Amire
ZEYTİN MÜZESİ, Konsept Tasarım, Uygulama Projesi, 2017, Hatay
AFYON MÜZESİ, İç Mekan ve Sergi Düzenleme Projesi, 2012, Afyon
ASMALIMESCİT, Rölöve, Restitüsyon, Restorasyon, 2022, İstanbul
TEPEKENT KENTSEL TASARIM Kentsel, Tasarım ve Avan Proje, 2014, Konya
PALET PAVYON, Konsept Tasarım ve Avan Proje, 2014, İstanbul
YENİKAPI ARKEOLOJİK BULUNTU ANALİTİK RÖLÖVESİ, Analitik Rölöve, 2014, İstanbul
HALASKARGAZİ KUYU, Rölöve, Restitüsyon ve Restorasyon Projesi, 2015, İstanbul
SEKA PARK SOKAK SERGİSİ, Konsept Tasarım ve Sergileme, 2015, Kocaeli
HALASKARGAZİ KUYU, Rölöve, Restitüsyon ve Restorasyon Projesi, 2015, İstanbul
İZMİR SESLİ TARİH MÜZESİ, Konsept Tasarım, 2022, İzmir
SEDDÜLBAHİR KALESİ SERGİLEME PROJESİ, Yeniden İşlevlendirme ve Sergileme Projesi, 2016, Çanakkale
İNCE EVİ, Konsept Tasarımı, Uygulama Projesi, 2021, Yalova
HALASKARGAZİ KUYU, Rölöve, Restitüsyon ve Restorasyon Projesi, 2015, İstanbul
MODA AHŞAP KONAK, Rölöve, Restorasyon, Restitüsyon Projesi, 2009, İstanbul
İNCE EVİ, Konsept Tasarımı, Uygulama Projesi, 2021, Yalova
HALASKARGAZİ KUYU, Rölöve, Restitüsyon ve Restorasyon Projesi, 2015, İstanbul
DİALOG İFADE ANLATIM OKULU, Konsept Tasarım ve Uygulama Projesi, 2015-2016, İstanbul
SOSYAL DAYANIŞMA MERKEZİ, Konsept Tasarım, Avan ve Uygulama Projesi, 2016, İstanbul
SEKA KAĞIT MÜZESİ, Konsept Tasarım, Avan ve Uygulama Projeleri, 2015, Kocaeli
SOSYAL DAYANIŞMA MERKEZİ, Konsept Tasarım, Avan ve Uygulama Projesi, 2016, İstanbul
KEMERALTI, Kentsel Tasarım; Yeniden İşlevlendirme, 2021, İzmir
BOZKIR PAZAR YERİ, Konsept Tasarım, 2014, Konya
SOSYAL DAYANIŞMA MERKEZİ, Konsept Tasarım, Avan ve Uygulama Projesi, 2016, İstanbul
DİALOG İFADE ANLATIM OKULU, Konsept Tasarım ve Uygulama Projesi, 2015-2016, İstanbul
TOPKAPI SARAYI MUTFAKLARI, Konsept Tasarım, Restorasyon, 2012, İstanbul
ZEYTİN MÜZESİ, Konsept Tasarım, Uygulama Projesi, 2017, Hatay
MOR ÇATI STÜDYO, Konsept Tasarım ve Avan Proje, 2015, İstanbul
DİALOG İFADE ANLATIM OKULU, Konsept Tasarım ve Uygulama Projesi, 2015-2016, İstanbul
TEPEKENT KENTSEL TASARIM Kentsel, Tasarım ve Avan Proje, 2014, Konya
MİMAR SİNAN SERGİSİ TOPHANE-İ AMİRE, Konsept Tasarım, Avan ve Uygulama, 2015, İstanbul, Tophane-i Amire
MOR ÇATI STÜDYO, Konsept Tasarım ve Avan Proje, 2015, İstanbul
KABATAŞ ŞAFT KAZISI ANALİTİK RÖLÖVESİ, Analitik Rölöve, 2016, İstanbul
MOR ÇATI STÜDYO, Konsept Tasarım ve Avan Proje, 2015, İstanbul
SEKA KAĞIT MÜZESİ, Konsept Tasarım, Avan ve Uygulama Projeleri, 2015, Kocaeli
MOR ÇATI STÜDYO, Konsept Tasarım ve Avan Proje, 2015, İstanbul
KEMERALTI, Kentsel Tasarım; Yeniden İşlevlendirme, 2021, İzmir
İZMİR TASARIM REHBERİ, Kıyı Projesi Tasarım Rehberi, 2012, İzmir
ASMALIMESCİT, Rölöve, Restitüsyon, Restorasyon, 2022, İstanbul
TEPEKENT KENTSEL TASARIM Kentsel, Tasarım ve Avan Proje, 2014, Konya
MEJARDINE MAĞAZA, Konsept Tasarım ve Avan Proje, 2014, İstanbul
TOPKAPI SARAYI MÜZESİ, Konsept Tasarım, Uygulama Projesi, 2017, İstanbul
TEPEKENT KENTSEL TASARIM Kentsel, Tasarım ve Avan Proje, 2014, Konya
SİLLE KENT MÜZESİ, Konsept Tasarım, 2014, Konya
GEZİCİ SERGİ, Konsept Tasarım, 2018, İstanbul

SİLLE KENT MÜZESİ, Konsept Tasarım, 2014, Konya
YELKİ KONUTLARI, Konsept Tasarım, Uygulama Projesi, 2021, İzmir
ZEYTİN MÜZESİ, Konsept Tasarım, Uygulama Projesi, 2017, Hatay
YENİKAPI ARKEOLOJİK BULUNTU ANALİTİK RÖLÖVESİ, Analitik Rölöve, 2014, İstanbul
AFYON MÜZESİ, İç Mekan ve Sergi Düzenleme Projesi, 2012, Afyon
YELKİ KONUTLARI, Konsept Tasarım, Uygulama Projesi, 2021, İzmir
MİMAR SİNAN SERGİSİ TOPHANE-İ AMİRE, Konsept Tasarım, Avan ve Uygulama, 2015, İstanbul, Tophane-i Amire
TOPKAPI SARAYI MÜZESİ, Konsept Tasarım, Uygulama Projesi, 2017, İstanbul
ZEYTİN MÜZESİ, Konsept Tasarım, Uygulama Projesi, 2017, Hatay
MİMAR SİNAN SERGİSİ TOPHANE-İ AMİRE, Konsept Tasarım, Avan ve Uygulama, 2015, İstanbul, Tophane-i Amire
AFYON MÜZESİ, İç Mekan ve Sergi Düzenleme Projesi, 2012, Afyon
SİLLE KENT MÜZESİ, Konsept Tasarım, 2014, Konya
AFYON MÜZESİ, İç Mekan ve Sergi Düzenleme Projesi, 2012, Afyon


TOPKAPI SARAYI MÜZESİ, Konsept Tasarım, Uygulama Projesi, 2017, İstanbul
MOR ÇATI STÜDYO, Konsept Tasarım ve Avan Proje, 2015, İstanbul
SEKA PARK SOKAK SERGİSİ, Konsept Tasarım ve Sergileme, 2015, Kocaeli
AFYON MÜZESİ, İç Mekan ve Sergi Düzenleme Projesi, 2012, Afyon
TOPKAPI SARAYI MÜZESİ, Konsept Tasarım, Uygulama Projesi, 2017, İstanbul
MERSİN, Kentsel Tasarım, 2019, Mersin
İNCE EVİ, Konsept Tasarımı, Uygulama Projesi, 2021, Yalova
MİMAR SİNAN SERGİSİ TOPHANE-İ AMİRE, Konsept Tasarım, Avan ve Uygulama, 2015, İstanbul, Tophane-i Amire
PALET PAVYON, Konsept Tasarım ve Avan Proje, 2014, İstanbul
BURHANİYE CAMİİ, Şantiye Yönetimi ve Revize Projeler, 2009, İstanbul
YELKİ KONUTLARI, Konsept Tasarım, Uygulama Projesi, 2021, İzmir
MERSİN, Kentsel Tasarım, 2019, Mersin
SONSUZLUK PARKI, Konsept Tasarım, 2020, İzmir
HAMAM, Konsept Tasarım, 2017, İstanbul
SEKA KAĞIT MÜZESİ, Konsept Tasarım, Avan ve Uygulama Projeleri, 2015, Kocaeli
ETİBANK, Konsept Tasarım, 2017, Ankara
İNCE EVİ, Konsept Tasarımı, Uygulama Projesi, 2021, Yalova
MERSİN, Kentsel Tasarım, 2019, Mersin
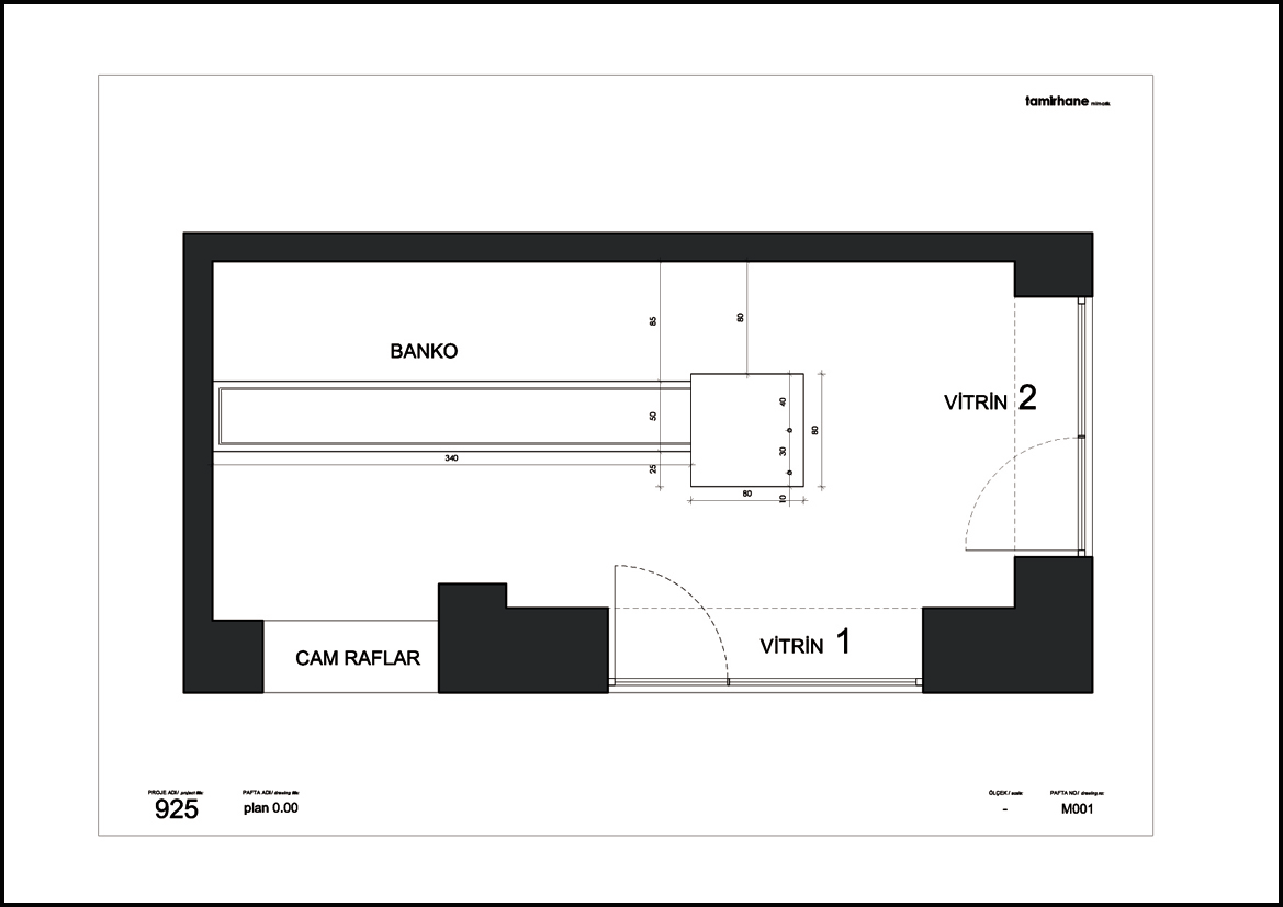
925 DÜKKAN, Konsept Tasarım, Avan ve Uygulama Projesi, 2014, İstanbul
ETİBANK, Konsept Tasarım, 2017, Ankara
SEKA PARK KENT SERGİLERİ, Konsept Tasarım ve Sergileme, 2015, Kocaeli
BURHANİYE CAMİİ, Şantiye Yönetimi ve Revize Projeler, 2009, İstanbul
SÜLEYMANİYE KÜLLİYESİ ŞİFAHANE RESTORASYONU, Şantiye Yönetimi ve Revize Projeler, 2016, İstanbul
BOZKIR PAZAR YERİ, Konsept Tasarım, 2014, Konya
POP-UP SİNEMA, Konsept Tasarım, 2020, İstanbul
BOZKIR PAZAR YERİ, Konsept Tasarım, 2014, Konya
İNCE EVİ, Konsept Tasarımı, Uygulama Projesi, 2021, Yalova
BOZKIR PAZAR YERİ, Konsept Tasarım, 2014, Konya
TEPEKENT KENTSEL TASARIM Kentsel, Tasarım ve Avan Proje, 2014, Konya
İNCE EVİ, Konsept Tasarımı, Uygulama Projesi, 2021, Yalova
SEKA KAĞIT MÜZESİ, Konsept Tasarım, Avan ve Uygulama Projeleri, 2015, Kocaeli
SÜLEYMANİYE KÜLLİYESİ ŞİFAHANE RESTORASYONU, Şantiye Yönetimi ve Revize Projeler, 2016, İstanbul
BEŞİKTAŞ METRO ŞAFTI ARKEOLOJİK KALINTI ANALİTİK RÖLÖVESİ, Analitik Rölöve, 2016, İstanbul
KABATAŞ ŞAFT KAZISI ANALİTİK RÖLÖVESİ, Analitik Rölöve, 2016, İstanbul
HALASKARGAZİ KUYU, Rölöve, Restitüsyon ve Restorasyon Projesi, 2015, İstanbul
KABATAŞ ŞAFT KAZISI ANALİTİK RÖLÖVESİ, Analitik Rölöve, 2016, İstanbul
YENİKAPI ARKEOLOJİK BULUNTU ANALİTİK RÖLÖVESİ, Analitik Rölöve, 2014, İstanbul
KEMERALTI, Kentsel Tasarım; Yeniden İşlevlendirme, 2021, İzmir
YENİKAPI ARKEOLOJİK BULUNTU ANALİTİK RÖLÖVESİ, Analitik Rölöve, 2014, İstanbul
POP-UP SİNEMA, Konsept Tasarım, 2020, İstanbul
YENİKAPI ARKEOLOJİK BULUNTU ANALİTİK RÖLÖVESİ, Analitik Rölöve, 2014, İstanbul
TOPKAPI SARAYI MÜZESİ, Konsept Tasarım, Uygulama Projesi, 2017, İstanbul
YENİKAPI ARKEOLOJİK BULUNTU ANALİTİK RÖLÖVESİ, Analitik Rölöve, 2014, İstanbul
KABATAŞ ŞAFT KAZISI ANALİTİK RÖLÖVESİ, Analitik Rölöve, 2016, İstanbul
SÜLEYMANİYE KÜLLİYESİ ŞİFAHANE RESTORASYONU, Şantiye Yönetimi ve Revize Projeler, 2016, İstanbul
YENİKAPI ARKEOLOJİK BULUNTU ANALİTİK RÖLÖVESİ, Analitik Rölöve, 2014, İstanbul
HALASKARGAZİ KUYU, Rölöve, Restitüsyon ve Restorasyon Projesi, 2015, İstanbul
SOSYAL DAYANIŞMA MERKEZİ, Konsept Tasarım, Avan ve Uygulama Projesi, 2016, İstanbul
DİALOG İFADE ANLATIM OKULU, Konsept Tasarım ve Uygulama Projesi, 2015-2016, İstanbul
TOPKAPI SARAYI MÜZESİ, Konsept Tasarım, Uygulama Projesi, 2017, İstanbul
DİALOG İFADE ANLATIM OKULU, Konsept Tasarım ve Uygulama Projesi, 2015-2016, İstanbul
MOR ÇATI STÜDYO, Konsept Tasarım ve Avan Proje, 2015, İstanbul
TEPEKENT KENTSEL TASARIM Kentsel, Tasarım ve Avan Proje, 2014, Konya
SEKA PARK KENT SERGİLERİ, Konsept Tasarım ve Sergileme, 2015, Kocaeli
TEPEKENT KENTSEL TASARIM Kentsel, Tasarım ve Avan Proje, 2014, Konya
PALET PAVYON, Konsept Tasarım ve Avan Proje, 2014, İstanbul
ZEYTİN MÜZESİ, Konsept Tasarım, Uygulama Projesi, 2017, Hatay
SEKA PARK KENT SERGİLERİ, Konsept Tasarım ve Sergileme, 2015, Kocaeli
TOPKAPI SARAYI MÜZESİ, Konsept Tasarım, Uygulama Projesi, 2017, İstanbul
SEKA PARK KENT SERGİLERİ, Konsept Tasarım ve Sergileme, 2015, Kocaeli
AFYON MÜZESİ, İç Mekan ve Sergi Düzenleme Projesi, 2012, Afyon
MİMAR SİNAN SERGİSİ TOPHANE-İ AMİRE, Konsept Tasarım, Avan ve Uygulama, 2015, İstanbul, Tophane-i Amire
TOPKAPI SARAYI MÜZESİ, Konsept Tasarım, Uygulama Projesi, 2017, İstanbul
AFYON MÜZESİ, İç Mekan ve Sergi Düzenleme Projesi, 2012, Afyon
TOPKAPI SARAYI MÜZESİ, Konsept Tasarım, Uygulama Projesi, 2017, İstanbul
HALASKARGAZİ KUYU, Rölöve, Restitüsyon ve Restorasyon Projesi, 2015, İstanbul
İZMİR SESLİ TARİH MÜZESİ, Konsept Tasarım, 2022, İzmir
MİMAR SİNAN SERGİSİ TOPHANE-İ AMİRE, Konsept Tasarım, Avan ve Uygulama, 2015, İstanbul, Tophane-i Amire
KEMERALTI, Kentsel Tasarım; Yeniden İşlevlendirme, 2021, İzmir
SEKA BİLİM MÜZESİ DİNOZOR SERGİSİ, Konsept Tasarım ve Sergi Düzenlemesi, 2015, Kocaeli
SEKA PARK KENT SERGİLERİ, Konsept Tasarım ve Sergileme, 2015, Kocaeli
MİMAR SİNAN SERGİSİ TOPHANE-İ AMİRE, Konsept Tasarım, Avan ve Uygulama, 2015, İstanbul, Tophane-i Amire
SONSUZLUK PARKI, Konsept Tasarım, 2020, İzmir
SÜLEYMANİYE EVİ, Rölöve, Restorasyon, Restitüsyon Projesi, 2009, İstanbul
SONSUZLUK PARKI, Konsept Tasarım, 2020, İzmir
TOPKAPI SARAYI MÜZESİ, Konsept Tasarım, Uygulama Projesi, 2017, İstanbul
MODA AHŞAP KONAK, Rölöve, Restorasyon, Restitüsyon Projesi, 2009, İstanbul
SONSUZLUK PARKI, Konsept Tasarım, 2020, İzmir
SÜLEYMANİYE EVİ, Rölöve, Restorasyon, Restitüsyon Projesi, 2009, İstanbul
SONSUZLUK PARKI, Konsept Tasarım, 2020, İzmir
SÜLEYMANİYE EVİ, Rölöve, Restorasyon, Restitüsyon Projesi, 2009, İstanbul
SONSUZLUK PARKI, Konsept Tasarım, 2020, İzmir
İNCE EVİ, Konsept Tasarımı, Uygulama Projesi, 2021, Yalova
YENİKAPI ARKEOLOJİK BULUNTU ANALİTİK RÖLÖVESİ, Analitik Rölöve, 2014, İstanbul
SÜLEYMANİYE EVİ, Rölöve, Restorasyon, Restitüsyon Projesi, 2009, İstanbul
BOZKIR PAZAR YERİ, Konsept Tasarım, 2014, Konya
ETİBANK, Konsept Tasarım, 2017, Ankara
SEKA KAĞIT MÜZESİ, Konsept Tasarım, Avan ve Uygulama Projeleri, 2015, Kocaeli
ETİBANK, Konsept Tasarım, 2017, Ankara
SÜLEYMANİYE KÜLLİYESİ ŞİFAHANE RESTORASYONU, Şantiye Yönetimi ve Revize Projeler, 2016, İstanbul
BEŞİKTAŞ METRO ŞAFTI ARKEOLOJİK KALINTI ANALİTİK RÖLÖVESİ, Analitik Rölöve, 2016, İstanbul
KABATAŞ ŞAFT KAZISI ANALİTİK RÖLÖVESİ, Analitik Rölöve, 2016, İstanbul
YENİKAPI ARKEOLOJİK BULUNTU ANALİTİK RÖLÖVESİ, Analitik Rölöve, 2014, İstanbul
BEŞİKTAŞ METRO ŞAFTI ARKEOLOJİK KALINTI ANALİTİK RÖLÖVESİ, Analitik Rölöve, 2016, İstanbul
MEJARDINE MAĞAZA, Konsept Tasarım ve Avan Proje, 2014, İstanbul
SOSYAL DAYANIŞMA MERKEZİ, Konsept Tasarım, Avan ve Uygulama Projesi, 2016, İstanbul
DİALOG İFADE ANLATIM OKULU, Konsept Tasarım ve Uygulama Projesi, 2015-2016, İstanbul
MODA AHŞAP KONAK, Rölöve, Restorasyon, Restitüsyon Projesi, 2009, İstanbul
İZMİR TASARIM REHBERİ, Kıyı Projesi Tasarım Rehberi, 2012, İzmir
MODA AHŞAP KONAK, Rölöve, Restorasyon, Restitüsyon Projesi, 2009, İstanbul
KEMERALTI, Kentsel Tasarım; Yeniden İşlevlendirme, 2021, İzmir
DİALOG İFADE ANLATIM OKULU, Konsept Tasarım ve Uygulama Projesi, 2015-2016, İstanbul
İZMİR TASARIM REHBERİ, Kıyı Projesi Tasarım Rehberi, 2012, İzmir
SEKA PARK SOKAK SERGİSİ, Konsept Tasarım ve Sergileme, 2015, Kocaeli
AFYON MÜZESİ, İç Mekan ve Sergi Düzenleme Projesi, 2012, Afyon
SONSUZLUK PARKI, Konsept Tasarım, 2020, İzmir
ZEYTİN MÜZESİ, Konsept Tasarım, Uygulama Projesi, 2017, Hatay
TEPEKENT KENTSEL TASARIM Kentsel, Tasarım ve Avan Proje, 2014, Konya
TOPKAPI SARAYI MÜZESİ, Konsept Tasarım, Uygulama Projesi, 2017, İstanbul
ZEYTİN MÜZESİ, Konsept Tasarım, Uygulama Projesi, 2017, Hatay
BEŞİKTAŞ METRO ŞAFTI ARKEOLOJİK KALINTI ANALİTİK RÖLÖVESİ, Analitik Rölöve, 2016, İstanbul
ZEYTİN MÜZESİ, Konsept Tasarım, Uygulama Projesi, 2017, Hatay
SİLLE KENT MÜZESİ, Konsept Tasarım, 2014, Konya
MİMAR SİNAN SERGİSİ TOPHANE-İ AMİRE, Konsept Tasarım, Avan ve Uygulama, 2015, İstanbul, Tophane-i Amire
TOPKAPI SARAYI MÜZESİ, Konsept Tasarım, Uygulama Projesi, 2017, İstanbul
KABATAŞ ŞAFT KAZISI ANALİTİK RÖLÖVESİ, Analitik Rölöve, 2016, İstanbul
PALET PAVYON, Konsept Tasarım ve Avan Proje, 2014, İstanbul
MİMAR SİNAN SERGİSİ TOPHANE-İ AMİRE, Konsept Tasarım, Avan ve Uygulama, 2015, İstanbul, Tophane-i Amire
AFYON MÜZESİ, İç Mekan ve Sergi Düzenleme Projesi, 2012, Afyon
TOPKAPI SARAYI MÜZESİ, Konsept Tasarım, Uygulama Projesi, 2017, İstanbul
AFYON MÜZESİ, İç Mekan ve Sergi Düzenleme Projesi, 2012, Afyon
TOPKAPI SARAYI MÜZESİ, Konsept Tasarım, Uygulama Projesi, 2017, İstanbul
ASMALIMESCİT, Rölöve, Restitüsyon, Restorasyon, 2022, İstanbul
GEZİCİ SERGİ, Konsept Tasarım, 2018, İstanbul
ASMALIMESCİT, Rölöve, Restitüsyon, Restorasyon, 2022, İstanbul
ZEYTİN MÜZESİ, Konsept Tasarım, Uygulama Projesi, 2017, Hatay
TOPKAPI SARAYI MÜZESİ, Konsept Tasarım, Uygulama Projesi, 2017, İstanbul
925 DÜKKAN, Konsept Tasarım, Avan ve Uygulama Projesi, 2014, İstanbul
İSTANBULLAŞMAK, Kitap, 2008-2009
TOPKAPI SARAYI MÜZESİ, Konsept Tasarım, Uygulama Projesi, 2017, İstanbul
TEPEKENT KENTSEL TASARIM Kentsel, Tasarım ve Avan Proje, 2014, Konya
KABATAŞ ŞAFT KAZISI ANALİTİK RÖLÖVESİ, Analitik Rölöve, 2016, İstanbul
SEDDÜLBAHİR KALESİ SERGİLEME PROJESİ, Yeniden İşlevlendirme ve Sergileme Projesi, 2016, Çanakkale
MİMAR SİNAN SERGİSİ TOPHANE-İ AMİRE, Konsept Tasarım, Avan ve Uygulama, 2015, İstanbul, Tophane-i Amire
AFYON MÜZESİ, İç Mekan ve Sergi Düzenleme Projesi, 2012, Afyon
SÜLEYMANİYE EVİ, Rölöve, Restorasyon, Restitüsyon Projesi, 2009, İstanbul
İNCE EVİ, Konsept Tasarımı, Uygulama Projesi, 2021, Yalova
TOPKAPI SARAYI MÜZESİ, Konsept Tasarım, Uygulama Projesi, 2017, İstanbul
İZMİR SESLİ TARİH MÜZESİ, Konsept Tasarım, 2022, İzmir
DİALOG İFADE ANLATIM OKULU, Konsept Tasarım ve Uygulama Projesi, 2015-2016, İstanbul
ASMALIMESCİT, Rölöve, Restitüsyon, Restorasyon, 2022, İstanbul
İZMİR SESLİ TARİH MÜZESİ, Konsept Tasarım, 2022, İzmir
MOR ÇATI STÜDYO, Konsept Tasarım ve Avan Proje, 2015, İstanbul
TEPEKENT KENTSEL TASARIM Kentsel, Tasarım ve Avan Proje, 2014, Konya
İNCE EVİ, Konsept Tasarımı, Uygulama Projesi, 2021, Yalova
YENİKAPI ARKEOLOJİK BULUNTU ANALİTİK RÖLÖVESİ, Analitik Rölöve, 2014, İstanbul
SÜLEYMANİYE KÜLLİYESİ ŞİFAHANE RESTORASYONU, Şantiye Yönetimi ve Revize Projeler, 2016, İstanbul
İNCE EVİ, Konsept Tasarımı, Uygulama Projesi, 2021, Yalova
MEJARDINE MAĞAZA, Konsept Tasarım ve Avan Proje, 2014, İstanbul
BEŞİKTAŞ METRO ŞAFTI ARKEOLOJİK KALINTI ANALİTİK RÖLÖVESİ, Analitik Rölöve, 2016, İstanbul
İNCE EVİ, Konsept Tasarımı, Uygulama Projesi, 2021, Yalova
TOPKAPI SARAYI MÜZESİ, Konsept Tasarım, Uygulama Projesi, 2017, İstanbul
PALET PAVYON, Konsept Tasarım ve Avan Proje, 2014, İstanbul
SİLLE KENT MÜZESİ, Konsept Tasarım, 2014, Konya
MERSİN, Kentsel Tasarım, 2019, Mersin
MODA AHŞAP KONAK, Rölöve, Restorasyon, Restitüsyon Projesi, 2009, İstanbul
HALASKARGAZİ KUYU, Rölöve, Restitüsyon ve Restorasyon Projesi, 2015, İstanbul
ETİBANK, Konsept Tasarım, 2017, Ankara
SEKA BİLİM MÜZESİ DİNOZOR SERGİSİ, Konsept Tasarım ve Sergi Düzenlemesi, 2015, Kocaeli
MİMAR SİNAN SERGİSİ TOPHANE-İ AMİRE, Konsept Tasarım, Avan ve Uygulama, 2015, İstanbul, Tophane-i Amire


SEKA BİLİM MÜZESİ DİNOZOR SERGİSİ, Konsept Tasarım ve Sergi Düzenlemesi, 2015, Kocaeli
BOZKIR PAZAR YERİ, Konsept Tasarım, 2014, Konya
SEKA BİLİM MÜZESİ DİNOZOR SERGİSİ, Konsept Tasarım ve Sergi Düzenlemesi, 2015, Kocaeli
TOPKAPI SARAYI MUTFAKLARI, Konsept Tasarım, Restorasyon, 2012, İstanbul

SEKA BİLİM MÜZESİ DİNOZOR SERGİSİ, Konsept Tasarım ve Sergi Düzenlemesi, 2015, Kocaeli
TOPKAPI SARAYI MUTFAKLARI, Konsept Tasarım, Restorasyon, 2012, İstanbul
TOPKAPI SARAYI MÜZESİ, Konsept Tasarım, Uygulama Projesi, 2017, İstanbul
TOPKAPI SARAYI MUTFAKLARI, Konsept Tasarım, Restorasyon, 2012, İstanbul
MOR ÇATI STÜDYO, Konsept Tasarım ve Avan Proje, 2015, İstanbul
TOPKAPI SARAYI MUTFAKLARI, Konsept Tasarım, Restorasyon, 2012, İstanbul
KABATAŞ ŞAFT KAZISI ANALİTİK RÖLÖVESİ, Analitik Rölöve, 2016, İstanbul
MİMAR SİNAN SERGİSİ TOPHANE-İ AMİRE, Konsept Tasarım, Avan ve Uygulama, 2015, İstanbul, Tophane-i Amire
MOR ÇATI STÜDYO, Konsept Tasarım ve Avan Proje, 2015, İstanbul
925 DÜKKAN, Konsept Tasarım, Avan ve Uygulama Projesi, 2014, İstanbu
TOPKAPI SARAYI MUTFAKLARI, Konsept Tasarım, Restorasyon, 2012, İstanbul
KABATAŞ ŞAFT KAZISI ANALİTİK RÖLÖVESİ, Analitik Rölöve, 2016, İstanbul


TOPKAPI SARAYI MUTFAKLARI, Konsept Tasarım, Restorasyon, 2012, İstanbul
ETİBANK, Konsept Tasarım, 2017, Ankara
TOPKAPI SARAYI MUTFAKLARI, Konsept Tasarım, Restorasyon, 2012, İstanbul
MİMAR SİNAN SERGİSİ TOPHANE-İ AMİRE, Konsept Tasarım, Avan ve Uygulama, 2015, İstanbul, Tophane-i Amire
TOPKAPI SARAYI MUTFAKLARI, Konsept Tasarım, Restorasyon, 2012, İstanbul
MİMAR SİNAN SERGİSİ TOPHANE-İ AMİRE, Konsept Tasarım, Avan ve Uygulama, 2015, İstanbul, Tophane-i Amire
TOPKAPI SARAYI MUTFAKLARI, Konsept Tasarım, Restorasyon, 2012, İstanbul
MİMAR SİNAN SERGİSİ TOPHANE-İ AMİRE, Konsept Tasarım, Avan ve Uygulama, 2015, İstanbul, Tophane-i Amire
MİMAR SİNAN SERGİSİ TOPHANE-İ AMİRE, Konsept Tasarım, Avan ve Uygulama, 2015, İstanbul, Tophane-i Amire
TOPKAPI SARAYI MÜZESİ, Konsept Tasarım, Uygulama Projesi, 2017, İstanbul
MİMAR SİNAN SERGİSİ TOPHANE-İ AMİRE, Konsept Tasarım, Avan ve Uygulama, 2015, İstanbul, Tophane-i Amire
ZEYTİN MÜZESİ, Konsept Tasarım, Uygulama Projesi, 2017, Hatay

TOPKAPI SARAYI MÜZESİ, Konsept Tasarım, Uygulama Projesi, 2017, İstanbul
SONSUZLUK PARKI, Konsept Tasarım, 2020, İzmir
TOPKAPI SARAYI MÜZESİ, Konsept Tasarım, Uygulama Projesi, 2017, İstanbul
MİMAR SİNAN SERGİSİ TOPHANE-İ AMİRE, Konsept Tasarım, Avan ve Uygulama, 2015, İstanbul, Tophane-i Amire
PALET PAVYON, Konsept Tasarım ve Avan Proje, 2014, İstanbul
MİMAR SİNAN SERGİSİ TOPHANE-İ AMİRE, Konsept Tasarım, Avan ve Uygulama, 2015, İstanbul, Tophane-i Amire
TOPKAPI SARAYI MUTFAKLARI, Konsept Tasarım, Restorasyon, 2012, İstanbul
İNCE EVİ, Konsept Tasarımı, Uygulama Projesi, 2021, Yalova
TOPKAPI SARAYI MÜZESİ, Konsept Tasarım, Uygulama Projesi, 2017, İstanbul
HALASKARGAZİ KUYU, Rölöve, Restitüsyon ve Restorasyon Projesi, 2015, İstanbul
MEJARDINE MAĞAZA, Konsept Tasarım ve Avan Proje, 2014, İstanbul
KEMERALTI, Kentsel Tasarım; Yeniden İşlevlendirme, 2021, İzmir
ETİBANK, Konsept Tasarım, 2017, Ankara
SEKA KAĞIT MÜZESİ, Konsept Tasarım, Avan ve Uygulama Projeleri, 2015, Kocaeli
NETAME, 2007
BURHANİYE CAMİİ, Şantiye Yönetimi ve Revize Projeler, 2009, İstanbul
TOPKAPI SARAYI MÜZESİ, Konsept Tasarım, Uygulama Projesi, 2017, İstanbul
ZEYTİN MÜZESİ, Konsept Tasarım, Uygulama Projesi, 2017, Hatay
POP-UP SİNEMA, Konsept Tasarım, 2020, İstanbul
SİLLE KENT MÜZESİ, Konsept Tasarım, 2014, Konya
TOPKAPI SARAYI MUTFAKLARI, Konsept Tasarım, Restorasyon, 2012, İstanbul
NETAME, Kitap, 2007
ETİBANK, Konsept Tasarım, 2017, Ankara
SEKA BİLİM MÜZESİ DİNOZOR SERGİSİ, Konsept Tasarım ve Sergi Düzenlemesi, 2015, Kocaeli
DİALOG İFADE ANLATIM OKULU, Konsept Tasarım ve Uygulama Projesi, 2015-2016, İstanbul
SEKA BİLİM MÜZESİ DİNOZOR SERGİSİ, Konsept Tasarım ve Sergi Düzenlemesi, 2015, Kocaeli
BEŞİKTAŞ METRO ŞAFTI ARKEOLOJİK KALINTI ANALİTİK RÖLÖVESİ, Analitik Rölöve, 2016, İstanbul
ALASKARGAZİ KUYU, Rölöve, Restitüsyon ve Restorasyon Projesi, 2015, İstanbul
YENİKAPI ARKEOLOJİK BULUNTU ANALİTİK RÖLÖVESİ, Analitik Rölöve, 2014, İstanbul
SONSUZLUK PARKI, Konsept Tasarım, 2020, İzmir
TOPKAPI SARAYI MUTFAKLARI, Konsept Tasarım, Restorasyon, 2012, İstanbul
MODA AHŞAP KONAK, Rölöve, Restorasyon, Restitüsyon Projesi, 2009, İstanbul
TOPKAPI SARAYI MUTFAKLARI, Konsept Tasarım, Restorasyon, 2012, İstanbul
MEJARDINE MAĞAZA, Konsept Tasarım ve Avan Proje, 2014, İstanbul
MOR ÇATI STÜDYO, Konsept Tasarım ve Avan Proje, 2015, İstanbul
TOPKAPI SARAYI MUTFAKLARI, Konsept Tasarım, Restorasyon, 2012, İstanbul
BEŞİKTAŞ METRO ŞAFTI ARKEOLOJİK KALINTI ANALİTİK RÖLÖVESİ, Analitik Rölöve, 2016, İstanbul
TOPKAPI SARAYI MUTFAKLARI, Konsept Tasarım, Restorasyon, 2012, İstanbul
HALASKARGAZİ KUYU, Rölöve, Restitüsyon ve Restorasyon Projesi, 2015, İstanbul
MOR ÇATI STÜDYO, Konsept Tasarım ve Avan Proje, 2015, İstanbul
İZMİR TASARIM REHBERİ, Kıyı Projesi Tasarım Rehberi, 2012, İzmir
TOPKAPI SARAYI MUTFAKLARI, Konsept Tasarım, Restorasyon, 2012, İstanbul
SİLLE KENT MÜZESİ, Konsept Tasarım, 2014, Konya
SÜLEYMANİYE KÜLLİYESİ ŞİFAHANE RESTORASYONU, Şantiye Yönetimi ve Revize Projeler, 2016, İstanbul
KABATAŞ ŞAFT KAZISI ANALİTİK RÖLÖVESİ, Analitik Rölöve, 2016, İstanbul
TEPEKENT KENTSEL TASARIM Kentsel, Tasarım ve Avan Proje, 2014, Konya
ZEYTİN MÜZESİ, Konsept Tasarım, Uygulama Projesi, 2017, Hatay
KABATAŞ ŞAFT KAZISI ANALİTİK RÖLÖVESİ, Analitik Rölöve, 2016, İstanbul
TOPKAPI SARAYI MUTFAKLARI, Konsept Tasarım, Restorasyon, 2012, İstanbul
BEŞİKTAŞ METRO ŞAFTI ARKEOLOJİK KALINTI ANALİTİK RÖLÖVESİ, Analitik Rölöve, 2016, İstanbul
ZEYTİN MÜZESİ, Konsept Tasarım, Uygulama Projesi, 2017, Hatay
TOPKAPI SARAYI MÜZESİ, Konsept Tasarım, Uygulama Projesi, 2017, İstanbul
MOR ÇATI STÜDYO, Konsept Tasarım ve Avan Proje, 2015, İstanbul
MİMAR SİNAN SERGİSİ TOPHANE-İ AMİRE, Konsept Tasarım, Avan ve Uygulama, 2015, İstanbul, Tophane-i Amire
KABATAŞ ŞAFT KAZISI ANALİTİK RÖLÖVESİ, Analitik Rölöve, 2016, İstanbul
HALASKARGAZİ KUYU, Rölöve, Restitüsyon ve Restorasyon Projesi, 2015, İstanbul
KABATAŞ ŞAFT KAZISI ANALİTİK RÖLÖVESİ, Analitik Rölöve, 2016, İstanbul
MİMAR SİNAN SERGİSİ TOPHANE-İ AMİRE, Konsept Tasarım, Avan ve Uygulama, 2015, İstanbul, Tophane-i Amire
TOPKAPI SARAYI MÜZESİ, Konsept Tasarım, Uygulama Projesi, 2017, İstanbul
SEDDÜLBAHİR KALESİ SERGİLEME PROJESİ, Yeniden İşlevlendirme ve Sergileme Projesi, 2016, Çanakkale
MİMAR SİNAN SERGİSİ TOPHANE-İ AMİRE, Konsept Tasarım, Avan ve Uygulama, 2015, İstanbul, Tophane-i Amire
925 DÜKKAN, Konsept Tasarım, Avan ve Uygulama Projesi, 2014, İstanbul
TOPKAPI SARAYI MÜZESİ, Konsept Tasarım, Uygulama Projesi, 2017, İstanbul