MİMARLIK VE TASARIM STÜDYOSU
İSTANBUL

MİMARLIK VE TASARIM STÜDYOSU
İSTANBUL




SÜLEYMANİYE EVİ

Tarih: 2009
Yer: İstanbul
İşveren: İstanbul Büyükşehir Belediyesi
Proje: Rölöve, Restorasyon, Restitüsyon Projesi
Alan: 400 m2





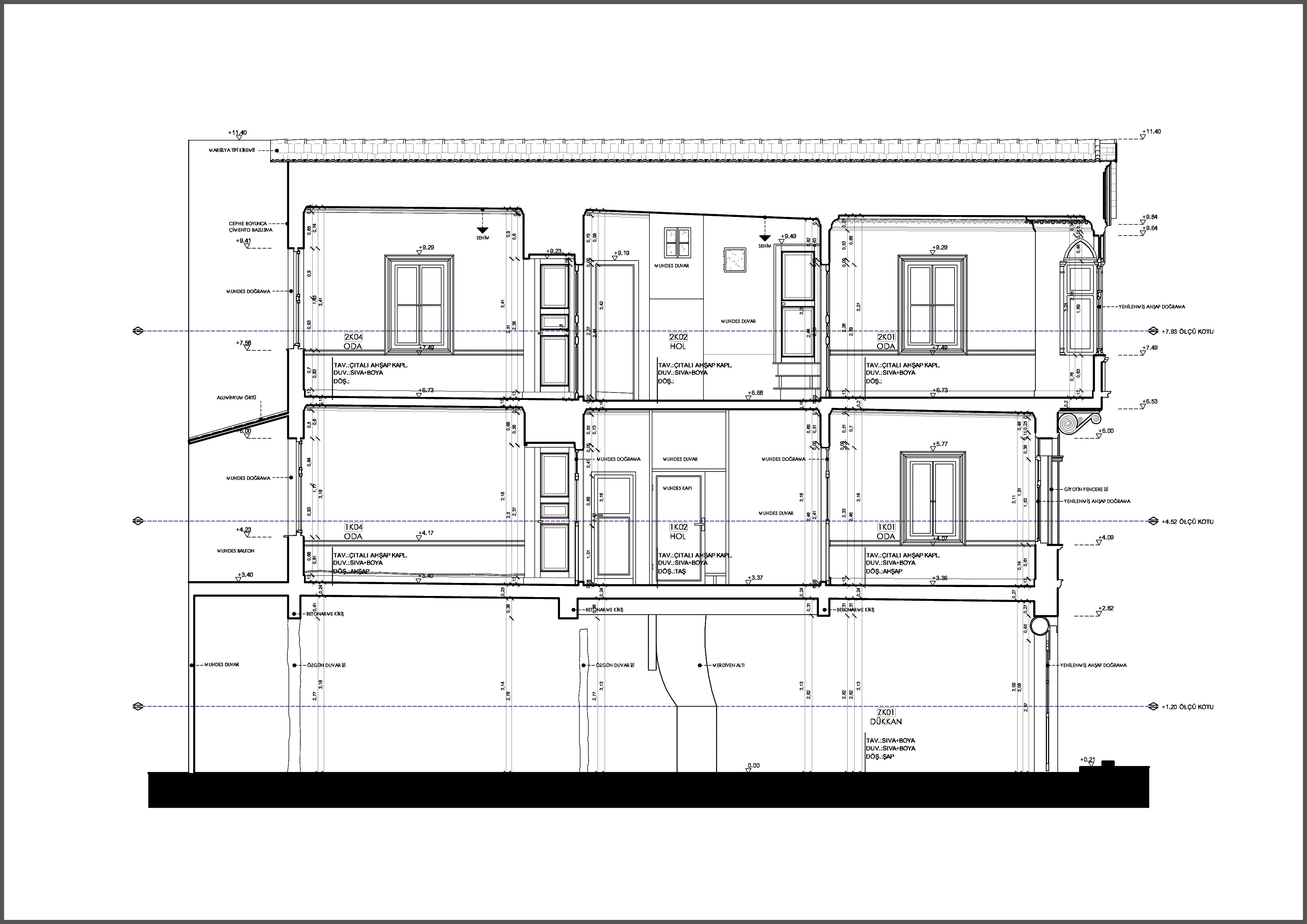
Süleymaniye’de bulunan, neoklasik tarzdaki bu üç katlı kagir yapının detaylı rölöve, restitüsyon ve restorasyon projeleri   hazırlandı.   Malzeme analizi, kronolojik analiz ve malzeme bozulmaları belgelendi.


Süleymaniye Evleri:


“Yüz yıl, hatta daha az geri giderek İstanbul  kentine ve kenti Marmara, Haliç ve batıdan kuşatan surlar arasındaki yarımada bölgesinin rastgele bir konut yerleşmesine yönelen kısa bir inceleme, belirli özellikleri ortaya koymaktadır. Organsı bir yol dokusu konut ve bahçe ile bütünleşerek sokağa kapanmış; sokakların genişliği, çizgisi, cumbaların yerden yüksekliği, her şey yayaya ve atlı insanlara göre oluşmuştur. Mahallenin yolları mescit, sübyan mektebi, kitaplık, çeşme, dükkanlar ve kahvenin kümelendiği sosyal ve kültürel bir çekirdeğe götürür. İç bahçelerin yer yer sokağa kadar uzanan yeşili içinde çatı biçimleri ve cumbaları ile evlerin meydana getirdiği mahalle dokusunda hemen her oda ve böylece başka bir deyişle her kişi ifade bulmuştur.” *


* Prof. Nezih Eldem




 
TAMİRHANE MİMARLIK 2024