MİMARLIK VE TASARIM STÜDYOSU
İSTANBUL

MİMARLIK VE TASARIM STÜDYOSU
İSTANBUL




MODA AHŞAP KONAK

Tarih: 2009
Yer: İstanbul
İşveren: Ermeni Hastanesi Vakfı
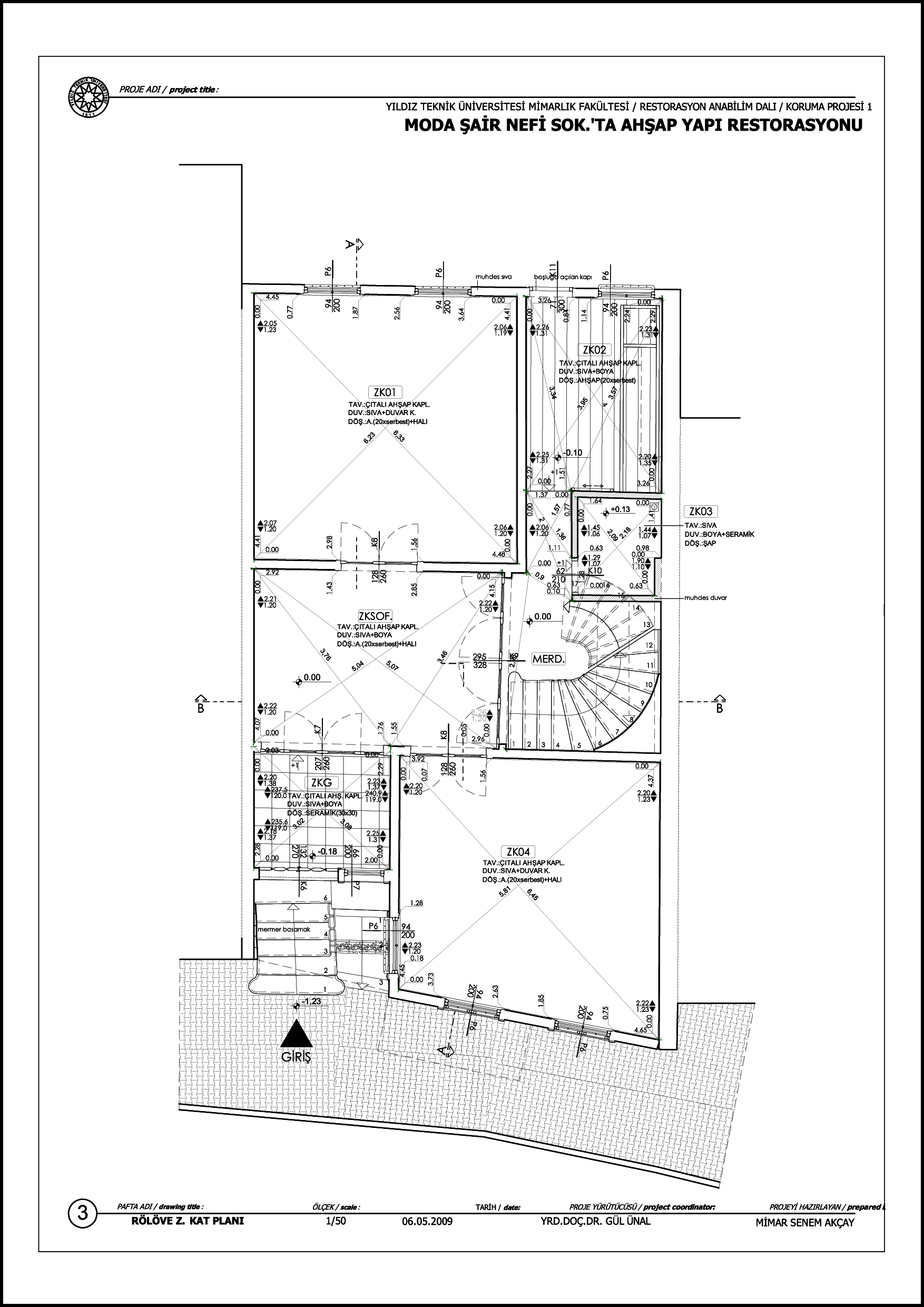
Proje: Rölöve, Restorasyon, Restitüsyon Projesi
Alan: 500 m2




Yapı, Kadıköy, Moda Şair Nefi Sokakta bulunmaktadır. 19.yy’ın başlarında yapılmış, günümüze kadar muhafaza edilmiştir. Elimize ulaşan eski belgeleri incelediğimizde aynı sokakta bulunan komşu yapılardan bir tarafı muhafaza edilmiş, diğer parsel ise apartman bloğu ile yapılanmıştır. Bodrum katı kagir (tuğla), diğer katları ahşap iskelet sistemle yapılmış bina bodrum ve çatı katıyla birlikte 4 katlıdır.


Ön cephede ahşap çıtalar ve süslemeler görülmektedir. Arka cephe ise çimento sıvası ile kapatılmış durumdadır. Özellikle arka dış cephede pencere ve kapı kenarlarında gözlenen çatlaklar yapının strüktürel sorunları olduğuna işaret etmektedir.




 
TAMİRHANE MİMARLIK 2024