MİMARLIK VE TASARIM STÜDYOSU
İSTANBUL

MİMARLIK VE TASARIM STÜDYOSU
İSTANBUL




TOPKAPI SARAYI MUTFAKLARI


Tarih: 2012
Yer: İstanbul
İşveren: İl Özel Dairesi (Teğet Mimarlık bünyesinde)
Proje: Konsept Tasarım, Restorasyon
Alan: 2500 m2




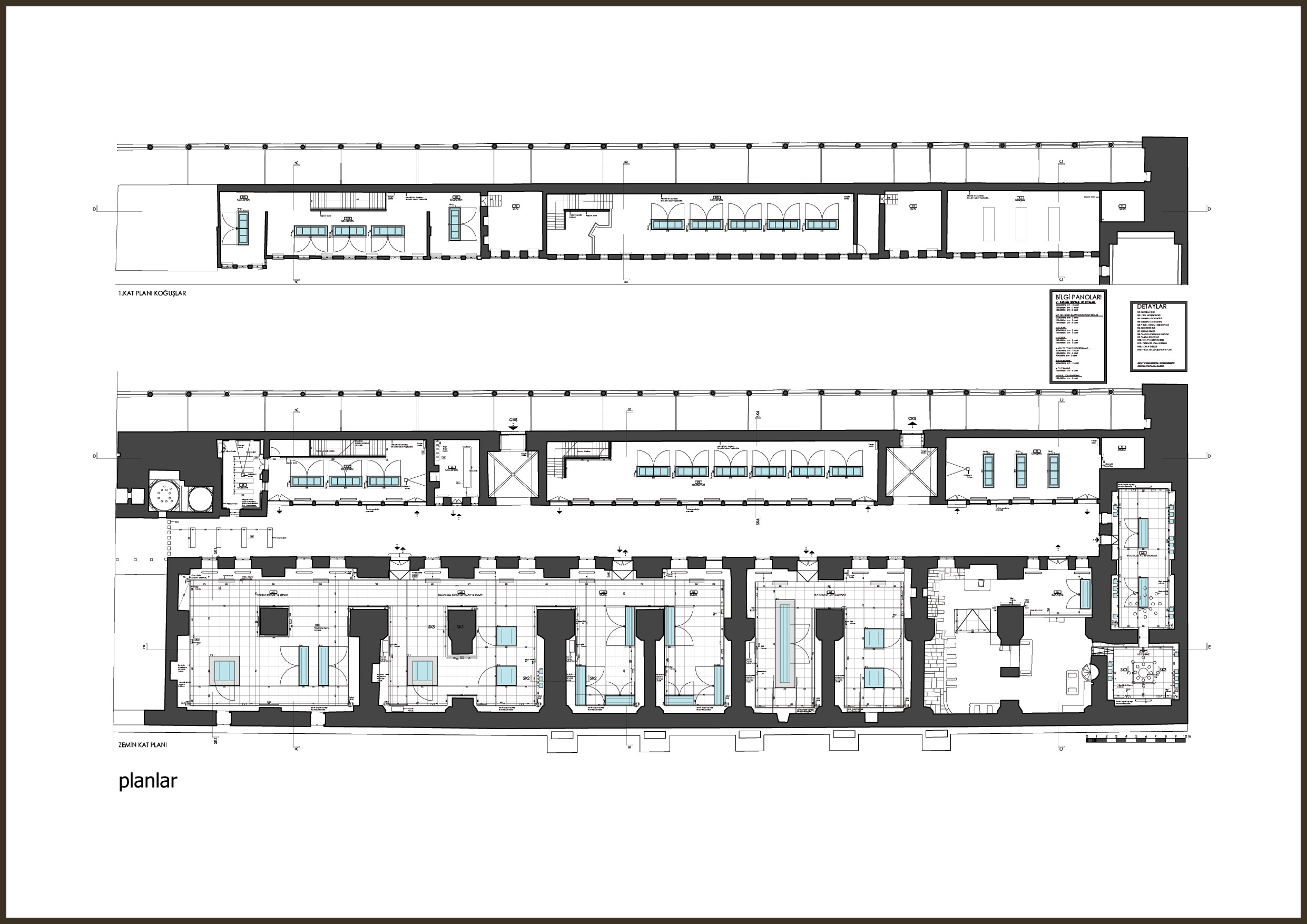
Saray mutfakları; fonksiyonel biçimlenişi, kütle oranları ve yapım tekniği ile Osmanlı mimarisini ve saray yaşantısını simgeleyen önemli yapılardan biri olarak 16. yüzyılda Mimar Sinan tarafından inşa edilmiştir. İçine kapalı bir avlu etrafında konumlanmış mimari planı ile (mutfak, iç avlu, koğuş hacimleri) tarihi mutfaklar, müze içinde bir müzedir.


Ana tasarım prensibi tüm dekoratif, elektrik ve mekanik sergi bileşenlerini; duvarları ve zemini zedelemeden yüzer bir sistem halinde kurgulamaktır. Sergi; özgünlüğünü büyük ölçüde yitirmiş koğuşlar ve yapının kendisinin de bir sergi objesi olarak ele alındığı özgün mutfaklar kısmı olarak iki bölümde ele alınmıştır.


Koğuşlar bölümü için hazırlanmış bir restorasyon projesi olmaması nedeni ile bu bölüme basit onarım önerilebilmiş ve özellikle objelerin çok sayıda olduğu Çin, Uzak Doğu ve Avrupa porselen koleksiyonları bu bölüme yerleştirilmiştir. Özgün mutfaklar bölümü ise deneyime ve bilgilendirmeye dayalı, obje yoğunluğu koleksiyon mekanlarına oranla daha az olan, binaların ve objelerin nasıl kullanılmış olduklarına dair hikayelerin öncelikli olduğu bir sergi anlayışı ile ele alınmıştır. Gene bu kısımda “500 Yıllık Osmanlı Mutfak Kültürü ve Sanatı”nın çeşitli yazılı ve görsel medya ile anlatılması amaçlanmıştır. Bu düşünceyle mekanda tarihi mutfak objelerinin yanısıra bu kültüre ait bilgi ve hikayelerin yer alacağı dijital ekranlara ve panolara yer verilmiştir.


Projelendirme aşamasında modern restorasyon yaklaşımları izlenmiş; mevcut yapının daha iyi algılanması amacıyla yeni strüktür tarihi yapıyla kontrast yapacak biçimde düzenlenmiştir. Eski ve yeninin bu kontrastı yapının algılanışını arttırırken aynı zamanda Topkapı Mutfakları kullanılan yeni teknoloji ile uluslararası sergileme standartlarına ulaşmış, konforlu bir müzeye dönüştürmektedir. Bu yaklaşım, Venedik Tüzüğü Madde 12’de yer alan ‘‘Eksik kısımlar tamamlanırken, bütünle uyumlu bir şekilde bağdaştırılmalıdır; fakat bu onarımın, aynı zamanda sanatsal ve tarihi tanıklığı yanlış bir biçimde yansıtmaması için, özgünden ayırt edilebilecek bir şekilde yapılması gereklidir.” yaklaşımıyla da örtüşmektedir.


Koğuşlar Bölümü:

Çin, Uzak Doğu ve Avrupa porseleni koleksiyonları için düzenlenmiştir. Bölüm için tasarlanan vitrinler objelerin çeşitliliği göz önünde tutularak yükseklikleri değişebilen, takılıp çıkarılabilen esnek raf ve aydınlatma sistemleri ile tasarlanmıştır. Ayrıca koğuş mekanlarına koleksiyonları anlatan, bilgi amaçlı film ve video gösterimleri için projeksiyonlar yerleştirilmiş ve mekanlardan biri gösterim odası olarak düzenlenmiştir. Gelen ziyaretçilerin müzenin bu kısmı ile ilgili bilgi, broşür, harita vb. alması amacı ile de bir danışma birimi tasarlanmıştır. Bu bölümün zemini mermer ile döşenmiştir. Bu kısımda tesisat basit onarım sırasında sıva altı olarak düşünülmüş ve projelendirilmiştir.


Mutfak Bölümü

(Yeni Platform ve Vitrinler) Bu platformun yerine getirdiği işlevler şöyle sıralanabilir:

• Platform, yapının duvarları ve ziyaretçi arasına bir mesafe koyarak yüzeyleri muhtemel zarar ve aşınmalardan koruyup, yapıyı da sergilenen bir obje haline getirmektedir.

• Düz yüzeyleri, rengi ve dokusuyla yarattığı kontrastın eski ve yeni arasında kurduğu gerilimli ilişki hem yeni eklenenin hem de korunanın algılanmasını kolaylaştırmakta ve güçlendirmektedir.

• Yükseltilmiş döşeme, tesisat kanallarının özgün duvar ve döşemelerini zedelemeden ilerleyebileceği ve kolay müdahaleye olanak sağlayan fonksiyonel bir alt hacim oluşturmaktadır.

• Bunların yanı sıra elektrik ve mekanik aksam da duvarlar yerine, tasarlanan tesisat direklerine tespit edilmiştir.

• Zaman içerisinde aşınmış, özgünlüğünü kaybetmiş ve düzgün bir yürüme yüzeyi oluşturmaktan uzak mevcut döşeme üzerine kurulan yeni platform, ziyaretçiler için yürüme konforu sağlamaktadır

• Platformda kullanılan malzeme, ortamın akustiğini müze standartlarına yaklaştırmaktadır. Ayrıca yüzeyin bitiş malzemesi olan mat PVC, ortamdaki ışığı yutmakta ve dikkati vitrinlere yöneltmektedir.

• Yükseltilmiş döşeme bileşenleri; çizilmeye, yüke ve neme dayanıklılık, kolay temizlenebilme ve onarılabilir olma gibi fiziksel özelliklere de sahiptir. Yeni döşeme, malzemesi, rengi ve dokusuyla vitrinlere tırmanarak gözü tırmalamayan monokrom bir topoğrafya oluşturur.


• Vitrinler, bu döşeme malzemesinin yükselerek oluşturduğu bazalara oturmaktadır. Müzede sergilenecek tarihi objelerin yanı sıra yapının kendisinin de bir sergi objesi olduğu göz önünde tutulduğundan, vitrinlerin baza üstlerinde cam kullanılarak şeffaflık sağlanmıştır.


Aydınlatma ve Havalandırma:

Yapının genel aydınlatması pencere ve kubbe ışıklıklarından sağlanmıştır. Objeler ise vitrinlerin içerisinde özel olarak aydınlatılmıştır. Böylece orijinal halindeki gibi doğal günışığı ile aydınlanan mekanlarda vitrinler öne çıkarılmıştır. Tek istisna olan Helvahane bölümünde vitrinler kullanılmamış, bu kısımda özgün mutfaklar canlandırılmıştır. Buradaki genel aydınlatma gergi çubuklarına tespit edilmiştir. Bacalara yerleştirilen pnömatik kapaklar kullanılarak mekanın havalandırması da aynı yaklaşımla, doğal olarak sağlanmıştır.


 
TAMİRHANE MİMARLIK 2024