MİMARLIK VE TASARIM STÜDYOSU
İSTANBUL

MİMARLIK VE TASARIM STÜDYOSU
İSTANBUL




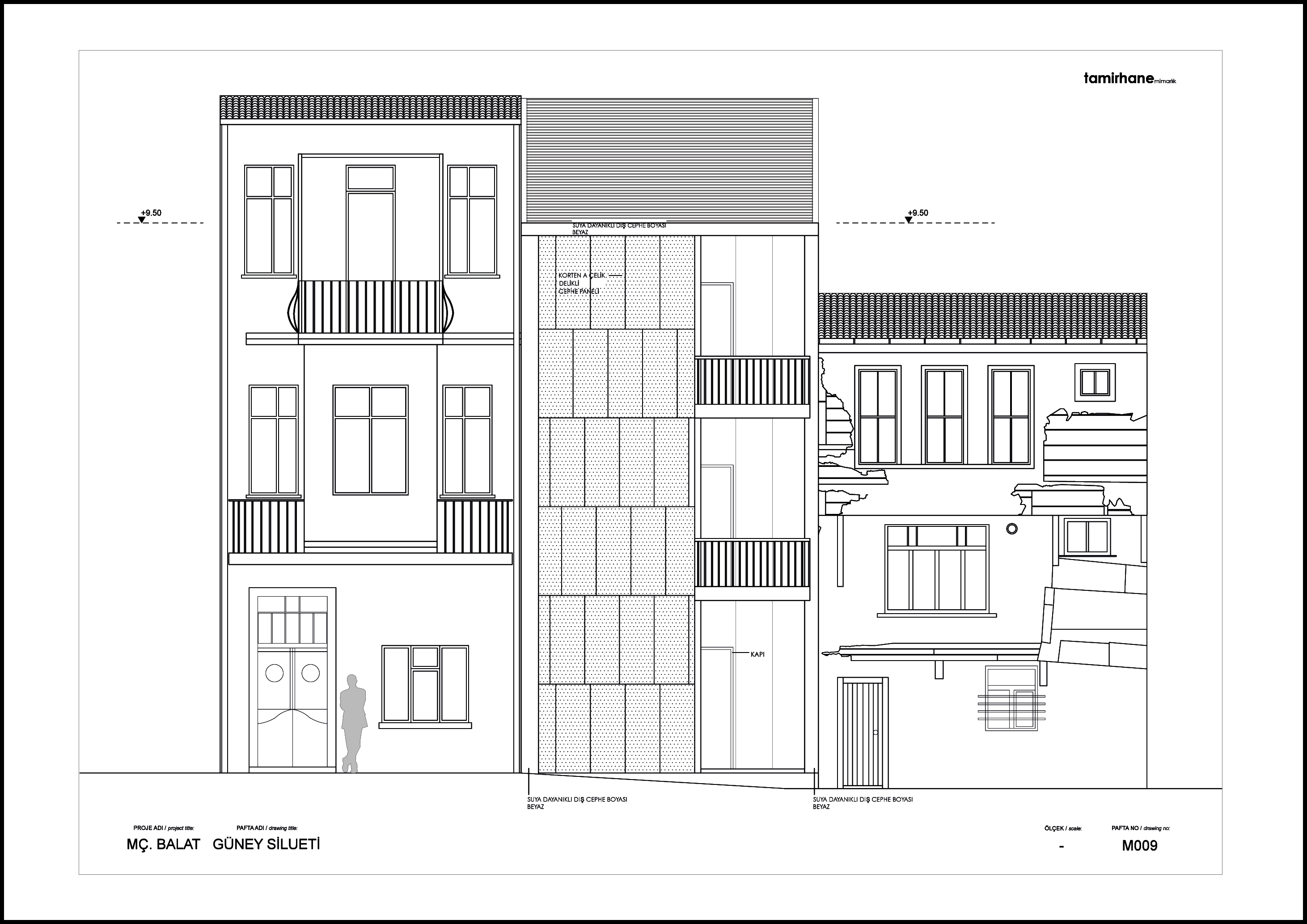
MOR ÇATI STÜDYO

Tarih: 2015
Yer: İstanbul
İşveren: Mor Çatı Vakfı
Proje: Konsept Tasarım ve Avan Proje
Alan: 50 m2
Proje Ekibi: Senem Akçay, Tanju Aslan, Ayşe Dila Demirgil, Nevzat Sayın Mimarlık Hizmetleri




28 m2 ’lik alana yerleştirilen tek kişilik dairelerde, günlük yaşantının gerektirdiği temel ihtiyaçların tümünün karşılanması amaçlandı. Minimum alanın ergonomik kullanımıyla bu model, hiçbir şeyi dışarıda bırakmadan, yaşamak için gerekli basit konforu sağlıyor. Plan; uyuma, dinlenme, giyinme, banyo, mutfak, çalışma ve depolama gibi ihtiyaç olan her şeyi karşılayan ama daha fazlasını devreye sokmayan bir anlayışla oluşturuldu.


Bu bağlamda; modüler mobilyalarla doludan boşa dönüşebilen alan kullanımları sağlanmıştır. 8.70 m uzunluğunda ve 4.15 m’den 2.50 m’ye düşen dikdörtgen planda, doğu cephesine ıslak hacimler, batı cephesine ise uyuma, dinlenme giyinme fonksiyonları yerleştirilmiştir. Bu tip mikro ölçekteki evler için çözülmesi gereken önemli bir ihtiyaç olarak ortaya çıkan depolama sorunu, daire hacminin üst kısımlarının bu amaçla kullanılmasıyla çözülmüştür.





 
TAMİRHANE MİMARLIK 2024